EasyManua.ls Logo

Radiant Slim RBA CS 100 E - Water Connections

Radiant Slim RBA CS 100 E
38 pages
Print Icon
To Next Page IconTo Next Page
To Next Page IconTo Next Page
To Previous Page IconTo Previous Page
To Previous Page IconTo Previous Page
Loading...
Installation Manual
Floor standing storage boiler – Cod. 99949NA – November 2002
7
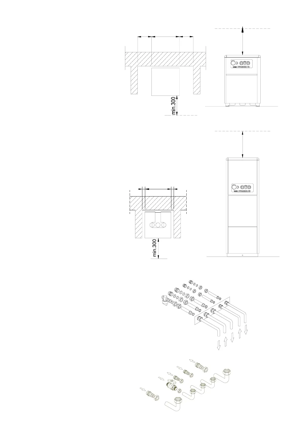
MINIMUM DISTANCES FOR FIXING
TO WALL
To allow access in the boiler for
maintenance operations, the minimum
distances shown below must be respected
(fig. 1 and 2):
WATER CONNECTIONS
To facilitate installation, the boiler is
equipped with a fittings kit (see fig. 3 and
4).
IMPORTANT:
Before connecting the heating system
pipes, carefully clean the system to prevent
residual dirt from entering into circulation
and negatively affecting boiler function.
Install a funnel with discharge under the
safety valve (calibrated to 3 bar) to collect
water in case of leaking due to
overpressure.
avoid using pipelines of reduced
diameter;
avoid the use of tight bends and
adapters in important sections;
clean out the system thoroughly before
connecting up the boiler in order to
eliminate any residue left in the pipes
and radiators.
N.B.:
Make sure that the water and heating
pipes are not used as earth connections for
electrical apparatus.
mod.
RBA CS 100 E
R
C
G
A
F
C
F
G
A
R
mod.
RBA CS 24 E
mod.
RBA CS 24 E
250
mod.
RBA CS 100 E
570 250
250
600
250
min. 500 min. 500
Fig. 1
Fig. 2
Fig. 3
Fig 4
R HEATING RETURN ¾”
G GAS ½”
C HOT WATER OUTLET ½”
F COLD WATER INLET½”
A HEATING FLOW ¾”

Related product manuals