EasyManua.ls Logo

rav RAV4401 - Page 14

Default Icon
173 pages
Print Icon
To Next Page IconTo Next Page
To Next Page IconTo Next Page
To Previous Page IconTo Previous Page
To Previous Page IconTo Previous Page
Loading...
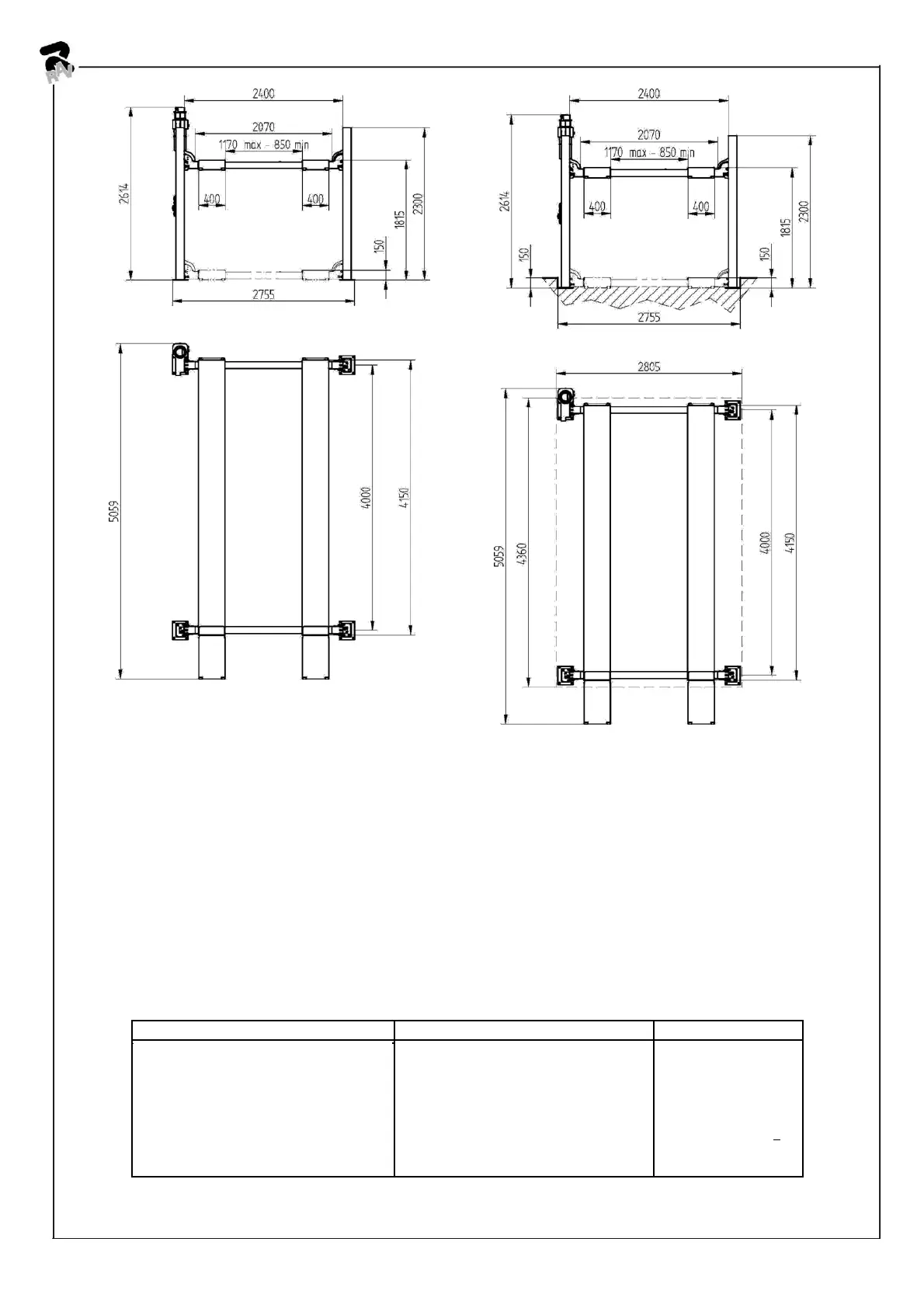
RAV4300
RAV4300
(Versione a pavimento
(Versione ad incasso
Напольная версия)
Утапливаемая версия)
CARATTERISTICHE TECNICHE
ТЕХНИЧЕСКИЕ ХАРАКТЕРИСТИКИ
RAV4300
Portata (kg)
Грузоподъемность (кг)
3000
Motore (kW)
Мотор (kW)
2.6
Tempo di salita (“)
Время подъема (“)
30
Tempo di discesa (“)
Время спуска (“)
30
Peso (kg)
Вес (кг)
670
Emissione sonora dB(A)
Уровень шума dB(A)
< 70
Pressione olio (bar)
Давление масла (bar)
260
Pressione aria (bar)
Давление воздуха (bar)
6 - 12
14 0716-M001-0

Related product manuals