EasyManua.ls Logo

rav RAV4401 - Page 17

Default Icon
173 pages
Print Icon
To Next Page IconTo Next Page
To Next Page IconTo Next Page
To Previous Page IconTo Previous Page
To Previous Page IconTo Previous Page
Loading...
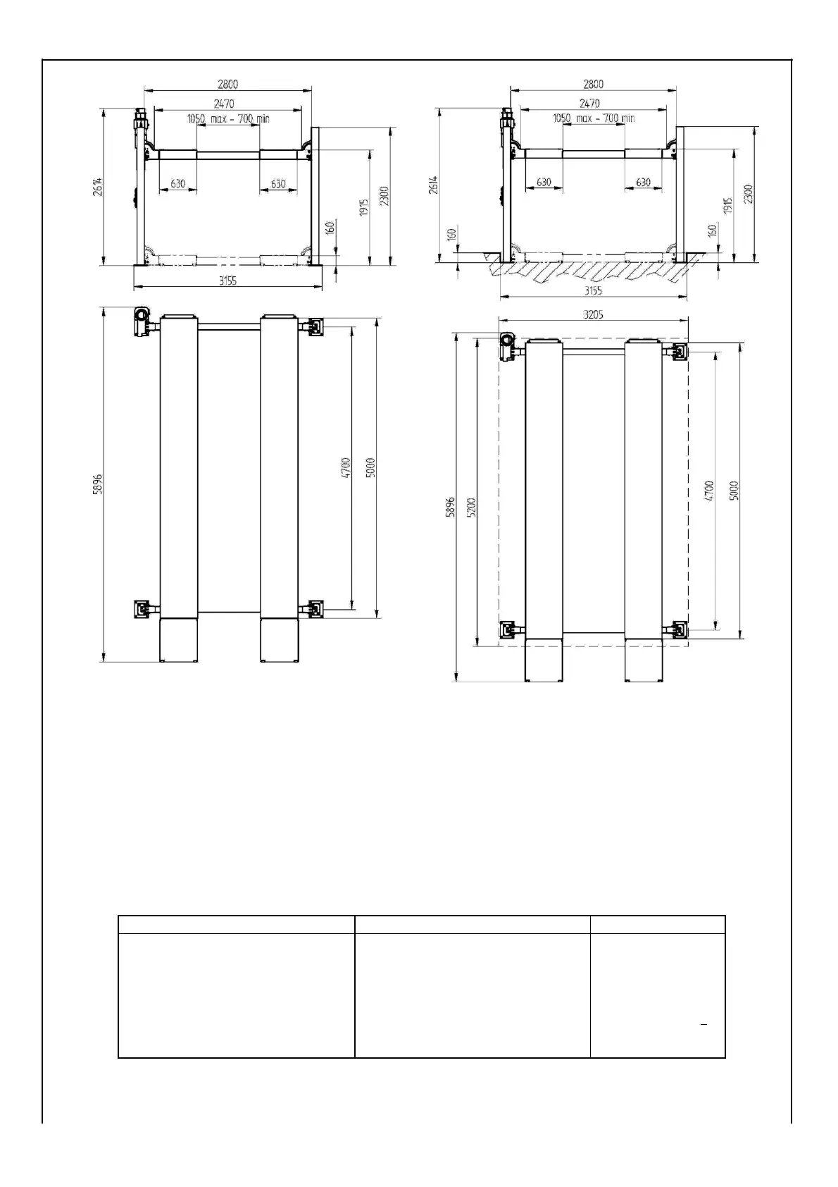
RAV 4400
RAV 4400
(Versione a pavimento
(Versione ad incasso
Напольная версия)
Утапливаемая версия)
CARATTERISTICHE TECNICHE
ТЕХНИЧЕСКИЕ ХАРАКТЕРИСТИКИ
RAV4400
Portata (kg)
Грузоподъемность (кг)
4000
Motore (kW)
Мотор (kW)
2.6
Tempo di salita (“)
Время подъема (“)
35
Tempo di discesa (“)
Время спуска (“)
30
Peso (kg)
Вес (кг)
920
Emissione sonora dB(A)
Уровень шума dB(A)
< 75
Pressione olio (bar)
Давление масла (bar)
230
Pressione aria (bar)
Давление воздуха (bar)
6 - 12
0716-M001-0 17

Related product manuals