EasyManua.ls Logo

rav RAV4401 - Page 23

Default Icon
173 pages
Print Icon
To Next Page IconTo Next Page
To Next Page IconTo Next Page
To Previous Page IconTo Previous Page
To Previous Page IconTo Previous Page
Loading...
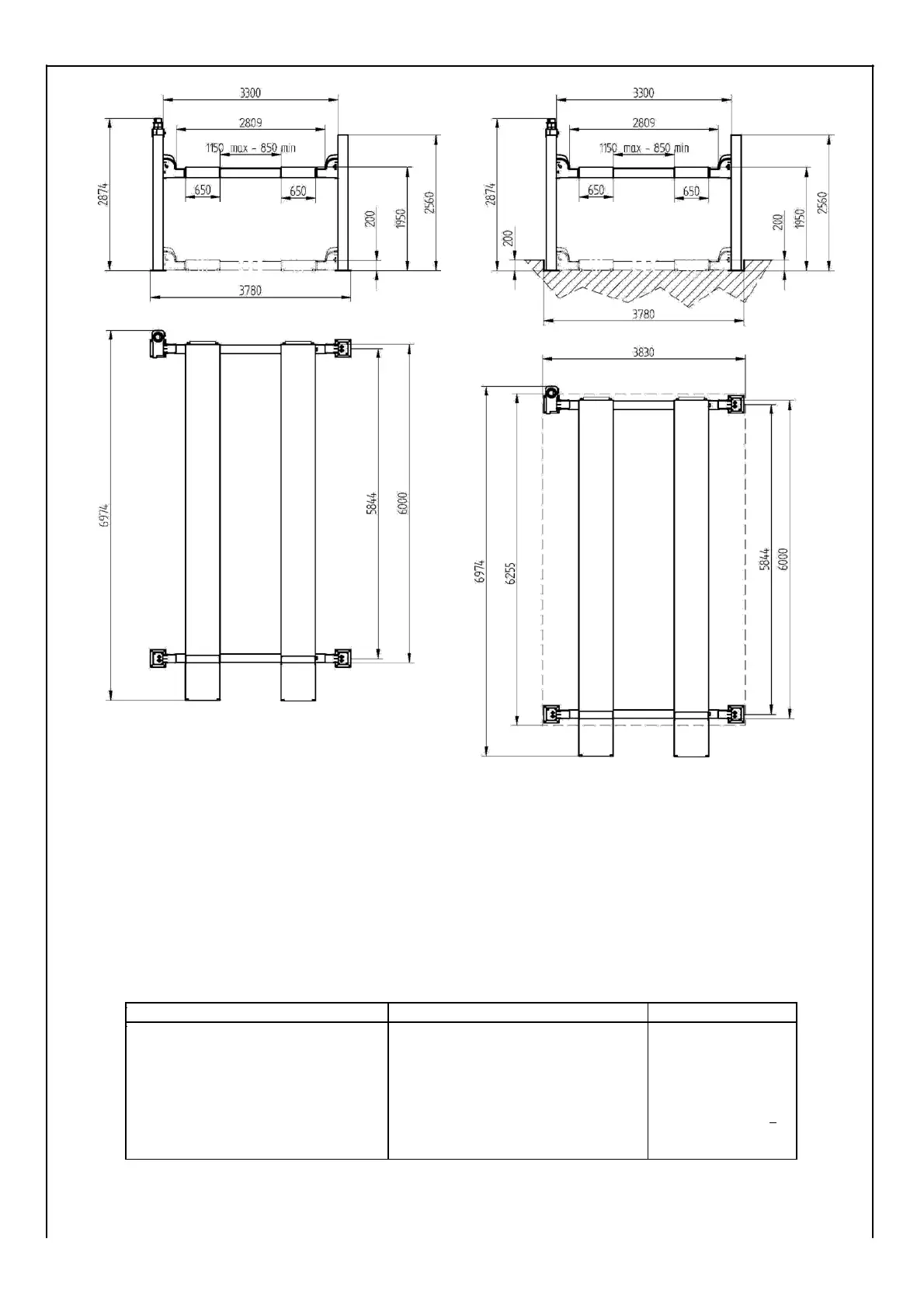
RAV 4800
RAV 4800
(Versione a pavimento
(Versione ad incasso
Напольная версия)
Утапливаемая версия)
CARATTERISTICHE TECNICHE
ТЕХНИЧЕСКИЕ ХАРАКТЕРИСТИКИ
RAV4800
Portata (kg)
Грузоподъемность (кг)
8000
Motore (kW)
Мотор (kW)
2.6
Tempo di salita (“)
Время подъема (“)
75
Tempo di discesa (“)
Время спуска (“)
60
Peso (kg)
Вес (кг)
1390
Emissione sonora dB(A)
Уровень шума dB(A)
< 75
Pressione olio (bar)
Давление масла (bar)
240
Pressione aria (bar)
Давление воздуха (bar)
6 - 12
0716-M001-0 23

Related product manuals