EasyManua.ls Logo

rav RAV516NL - Page 72

rav RAV516NL
106 pages
Print Icon
To Next Page IconTo Next Page
To Next Page IconTo Next Page
To Previous Page IconTo Previous Page
To Previous Page IconTo Previous Page
Loading...
0579 - M030-2
30/09/14
72
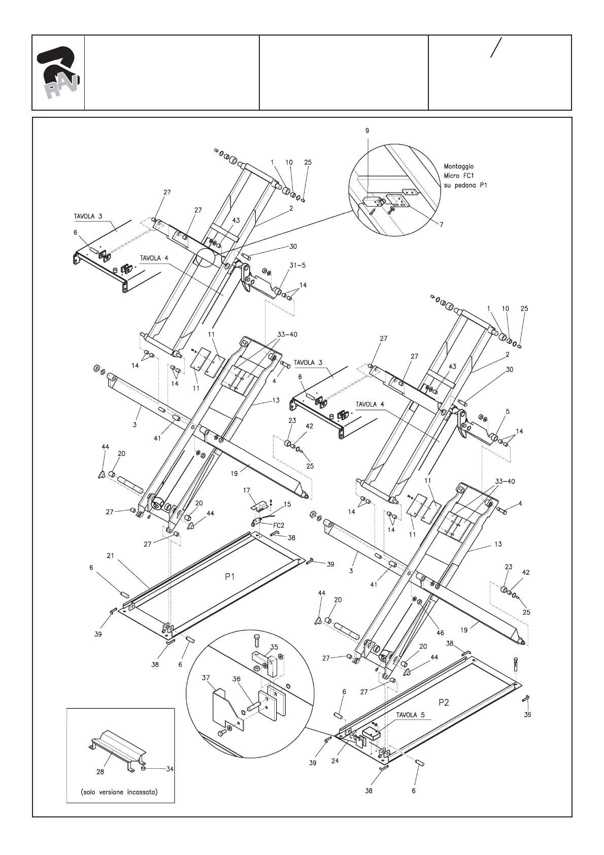
Denominazione tavola - Table definition
Valida per i modelli - Apply to models
N°tavola
Table no
Indice di modifica
Change index
RAV516 NL - RAV516 NLI
RAV518 NL - RAV518 NLI
RAV518 Q - RAV518 QI
SOLLEVATORE PRINCIPALE
MAIN LIFT
1/5

Table of Contents

Related product manuals