EasyManua.ls Logo

Raypak 503-2003 - Page 28

Raypak 503-2003
58 pages
Print Icon
To Next Page IconTo Next Page
To Next Page IconTo Next Page
To Previous Page IconTo Previous Page
To Previous Page IconTo Previous Page
Loading...
SECTION C: Installation
26
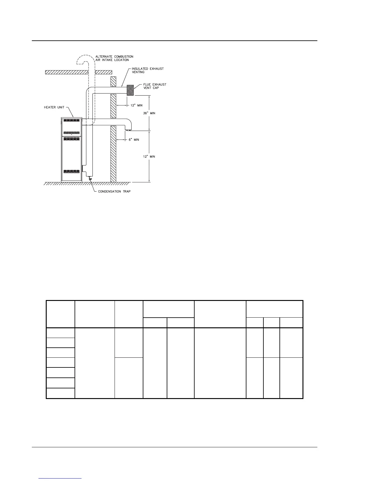
Fig. 24: Horizontal Through-the-Wall Direct Venting
CAUTION: This venting system requires the installa-
tion of a condensate drain in the vent piping per the
vent manufacturer’s instructions. Failure to install a
condensate drain in the venting system will void all
warranties on this heater.
Installation
These installations utilize the heater-mounted blower to
vent the combustion products to the outdoors. Com-
bustion air is taken from inside the room and the vent is
installed horizontally through the wall to the outdoors.
Adequate combustion and ventilation air must be sup-
plied to the equipment room in accordance with the
NFGC (U.S.) or B149.1 (Canada).
The total length of the horizontal through-the-wall flue
system should not exceed 75 equivalent ft in length. If
horizontal run exceeds 75 equivalent ft, an appropri-
ately sized variable-speed extractor must be used. Each
elbow used is equal to 10 ft of straight pipe. This will
allow installation in one of the four following arrange-
ments:
75’ of straight flue pipe
65’ of straight flue pipe and one elbow
55’ of straight flue pipe and two elbows
45’ of straight pipe and three elbows
The vent cap is not considered in the overall length of
the venting system.
The vent must be installed to prevent flue gas leakage.
Care must be taken during assembly to ensure that all
joints are sealed properly and are airtight. The vent
must be installed to prevent the potential accumulation
of condensate in the vent pipes. It is required that:
1. The vent must be installed with a condensate drain
located in proximity to the heater as directed by
the vent manufacturer.
2. The vent must be installed with a slight upward
slope of not less than 1/4 inch per foot of horizon-
tal run to the vent terminal.
Horizontal
Vent Length (Ft)*
Air Inlet
Max. Length (Ft) **
Model
Certified Vent
Material
Vent Size
(in.)
Min. Max.
Combustion Air
Intake Pipe
Material
6”Ø 8” Ø 10” Ø
503
753
1003
6 45 100 N/A
1253
1503
1753
2003
Category IV
(AL29-4C)
8
0 75
Galvanized Steel,
PVC,
ABS,
CPVC
N/A 45 85
* Vent lengths are based on a lateral length of 2 ft. Refer to the latest edition of the NFGC for further details.
** Subtract 10 ft per elbow. Max. 4 elbows.
Table M: Category IV Horizontal Vent & Horizontal Direct Vent

Related product manuals