EasyManua.ls Logo

Raypak MVB 503-2003 - Page 27

Raypak MVB 503-2003
56 pages
Print Icon
To Next Page IconTo Next Page
To Next Page IconTo Next Page
To Previous Page IconTo Previous Page
To Previous Page IconTo Previous Page
Loading...
27
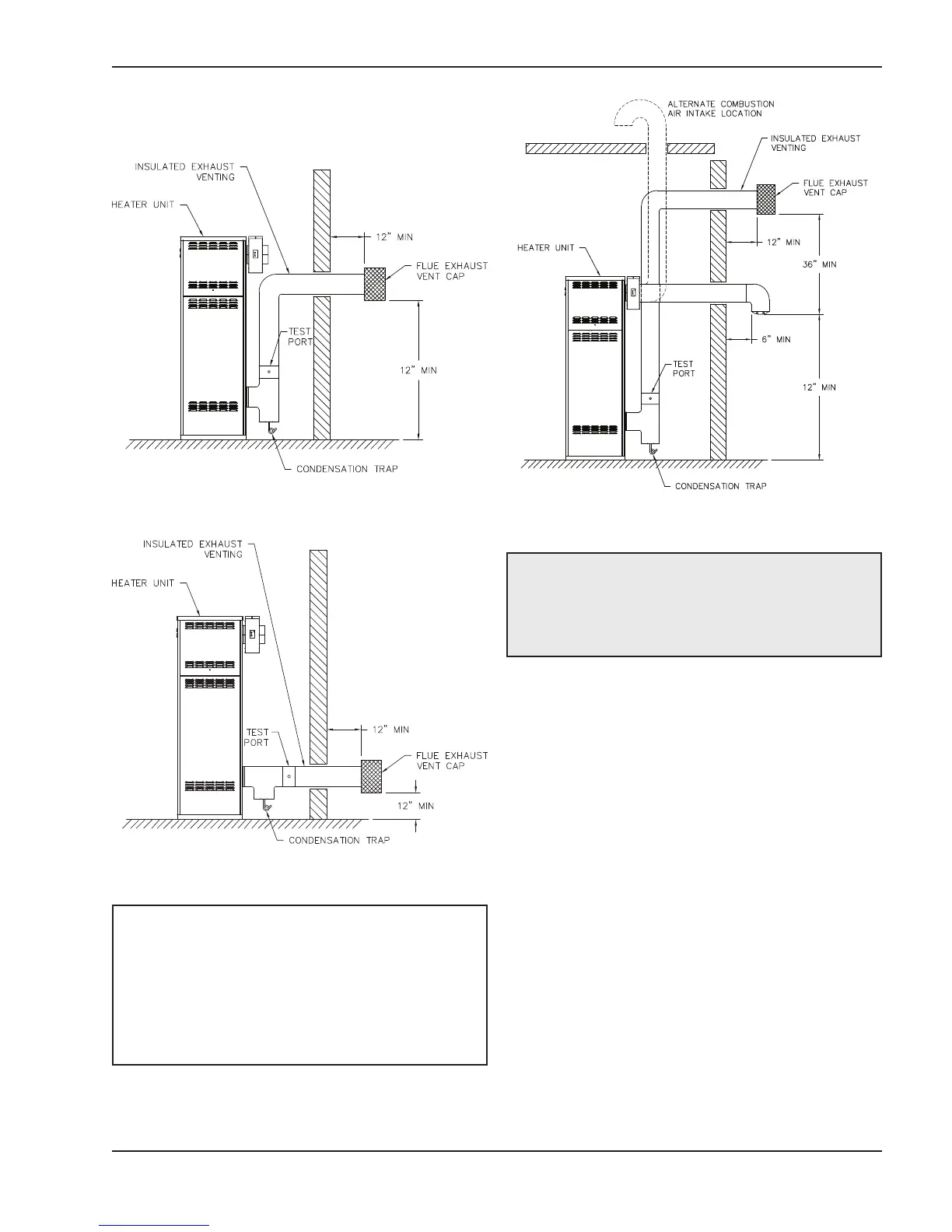
Fig. 25: Horizontal Through-the-Wall Venting
Fig. 26: Alt. Horizontal Through-the-Wall Venting
NOTE: While a drain connection is required in the
vent of all MVB installations, the drain can be ac-
complished in several different ways. The figures in
this manual show the drain in a vent tee, however,
this can also be accomplished using an inline collec-
tor for condensing stacks or an inline vertical or
horizontal collector available from several of the
listed vent manufacturers.
Fig. 27: Horizontal Through-the-Wall Direct Venting
CAUTION: This venting system requires the
installation of a condensate drain in the vent piping
per the vent manufacturer’s instructions. Failure to
install a condensate drain in the venting system will
void all warranties on this heater.
Installation
These installations utilize the heater-mounted blower
to vent the combustion products to the outdoors.
Combustion air is taken from inside the room and the
vent is installed horizontally through the wall to the out-
doors. Adequate combustion and ventilation air must
be supplied to the equipment room in accordance with
the NFGC (U.S.) or B149 (Canada).
The total length of the horizontal through-the-wall flue
system should not exceed 75 equivalent ft in length. If
horizontal run exceeds 75 equivalent ft, an appropri-
ately sized variable-speed extractor must be used.
Each elbow used is equal to 10 ft of straight pipe. This
will allow installation in one of the four following
arrangements:
75’ of straight flue pipe
65’ of straight flue pipe and one elbow
55’ of straight flue pipe and two elbows
45’ of straight pipe and three elbows
The vent cap is not considered in the overall length of
the venting system.
Horizontal Through-the-Wall Direct
Venting (Category IV)

Related product manuals