EasyManua.ls Logo

Raypak MVB 503-2003 - Page 31

Raypak MVB 503-2003
56 pages
Print Icon
To Next Page IconTo Next Page
To Next Page IconTo Next Page
To Previous Page IconTo Previous Page
To Previous Page IconTo Previous Page
Loading...
31
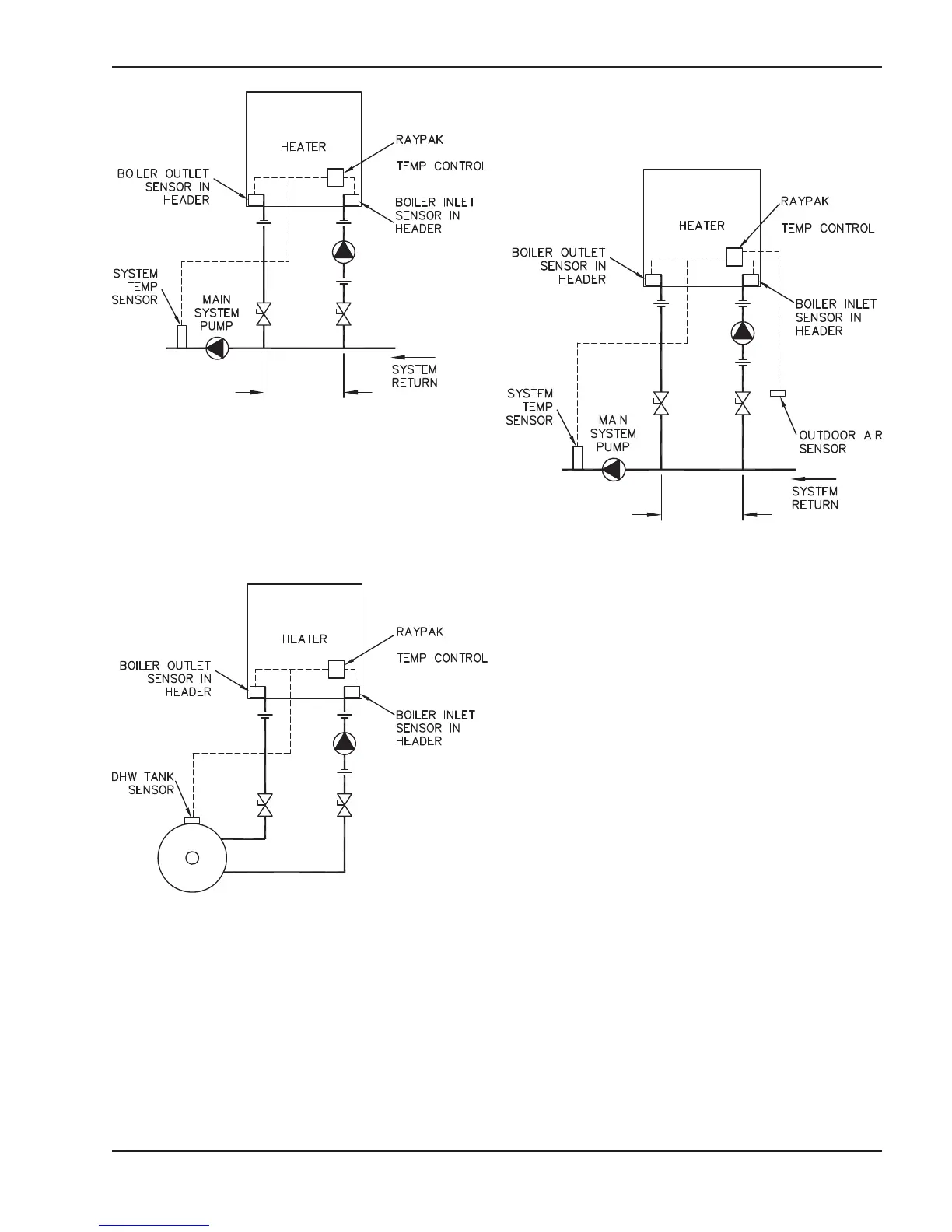
Mode 3 Dedicated DHW operation using UniTemp
80 piping. A call for heat is determined by the DHW
sensor and the DHW boiler target. The heater outlet
water is also controlled to the boiler target tempera-
ture. See Fig. 32.
Mode 4 (Not supported) Outdoor reset using pri-
mary piping. The heater is operated as in Mode 1.
However, the target temperature is based on outdoor
reset.
M
ODULATING
*
Fig. 31: Mode 2 Primary/Secondary Piping
MODULATING
Fig. 32: Mode 3 Dedicated DHW
*Maximum 4 times the pipe diameter or 12”, whichever is less.
M
ode 5 Outdoor reset using primary/secondary pip-
ing. The heater is operated as in Mode 2. However, the
target temperature is based on outdoor reset. See Fig.
33.
Mode 6 (Not supported) Designed for an external
input signal with primary piping. The external input sig-
nal can be provided from a BMS, an EMS or a
sequencing control. The external input signal changes
the boiler target according to a linear scale. The con-
trol operates the boiler burner to maintain the boiler
target at the boiler outlet sensor.
Mode 7 Designed for an external input signal with
primary/secondary piping. The external input signal
can be provided from a BMS, an EMS or an external
control. The external input signal changes the boiler
target according to a linear scale, as shown in Tables
O and P. The control operates the boiler burner to
maintain the boiler target at the system sensor. See
Fig. 34
MODULATING
*
Fig. 33: Mode 5 Primary/Secondary Piping with
Outdoor Reset
*Maximum 4 times the pipe diameter or 12”, whichever is less.

Related product manuals