EasyManua.ls Logo

Raypak Power Vent D2 - Wiring Diagrams-182-260 H4;WH1 (Atmospheric)

Raypak Power Vent D2
16 pages
Print Icon
To Next Page IconTo Next Page
To Next Page IconTo Next Page
To Previous Page IconTo Previous Page
To Previous Page IconTo Previous Page
Loading...
10
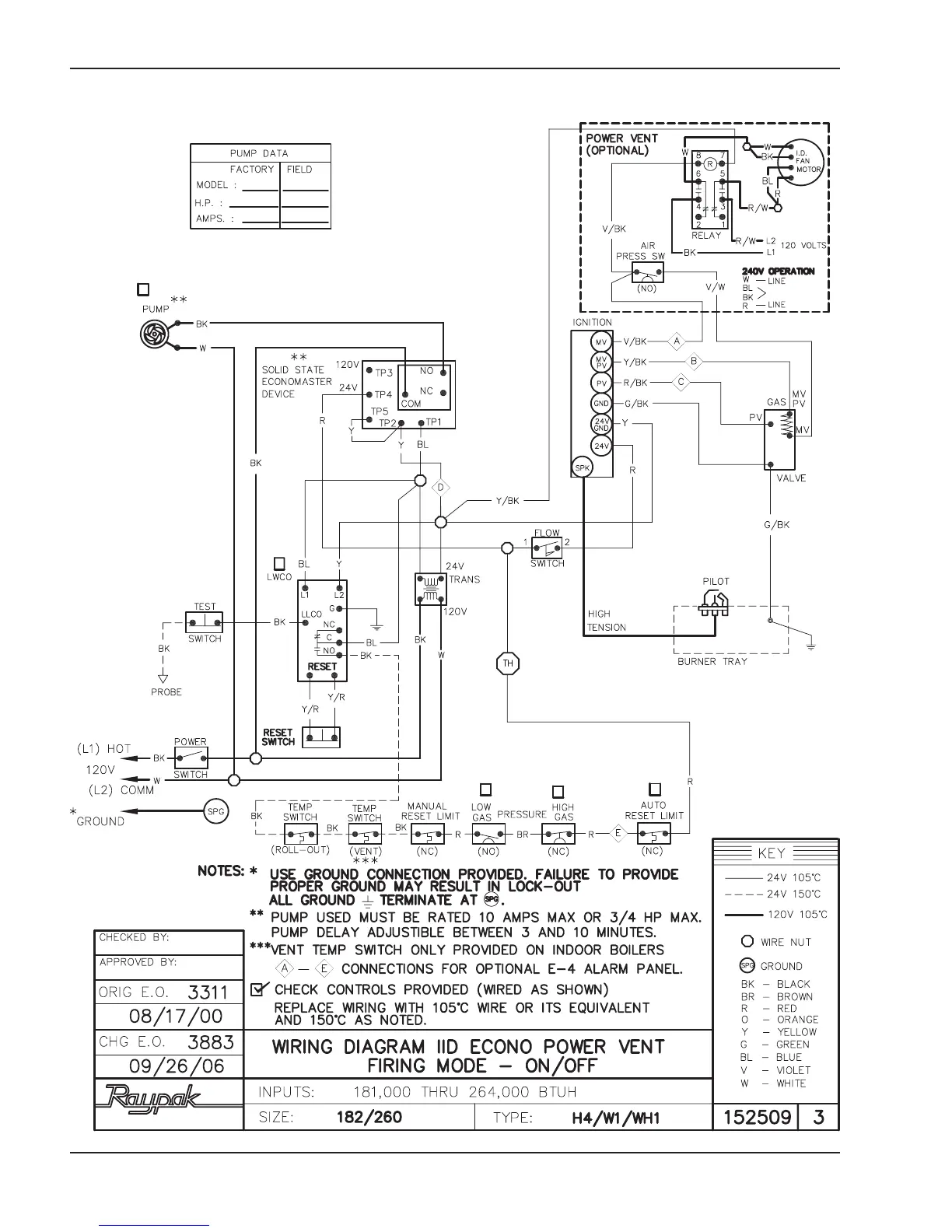
Wiring Diagrams—182-260 H4/WH1 (Atmospheric)