EasyManua.ls Logo

Raypak PR206AMNC - Wiring Diagram - Millivolt

Raypak PR206AMNC
52 pages
Print Icon
To Next Page IconTo Next Page
To Next Page IconTo Next Page
To Previous Page IconTo Previous Page
To Previous Page IconTo Previous Page
Loading...
24
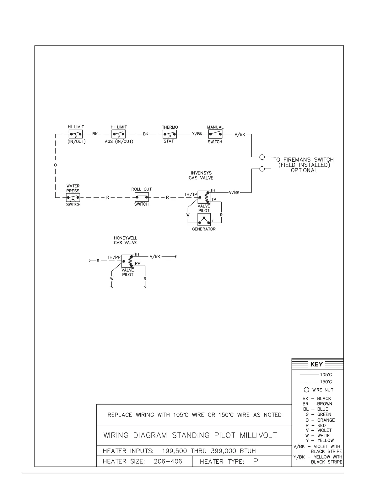
6. WIRING DIAGRAM - MILLIVOLT
6000.59AH_Atmospheric.indd 24 12/17/2019 2:13:00 PM

Related product manuals