EasyManua.ls Logo

RBI FlexCore CK 6000 - Page 75

RBI FlexCore CK 6000
136 pages
Print Icon
To Next Page IconTo Next Page
To Next Page IconTo Next Page
To Previous Page IconTo Previous Page
To Previous Page IconTo Previous Page
Loading...
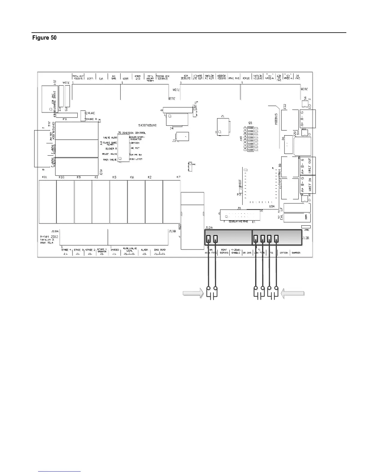
WIRING CONNECTIONS HeatNet Control V3
Page 75
Heating Methods 2 and 4: AA-High Fire and High/Low, Master or member boiler
Heating Mode 2: Stage Control Inputs.
T1 or T2 Closed: Lowfire
T1 & T2 closed: Highfire
T1 T2
Heating Mode 4: High Fire
Close this contact to run boiler at Highfire.

Table of Contents

Related product manuals