EasyManua.ls Logo

RBI FlexCore CK 6000 - Page 76

RBI FlexCore CK 6000
136 pages
Print Icon
To Next Page IconTo Next Page
To Next Page IconTo Next Page
To Previous Page IconTo Previous Page
To Previous Page IconTo Previous Page
Loading...
WIRING CONNECTIONS HeatNet Control V3
Page 76
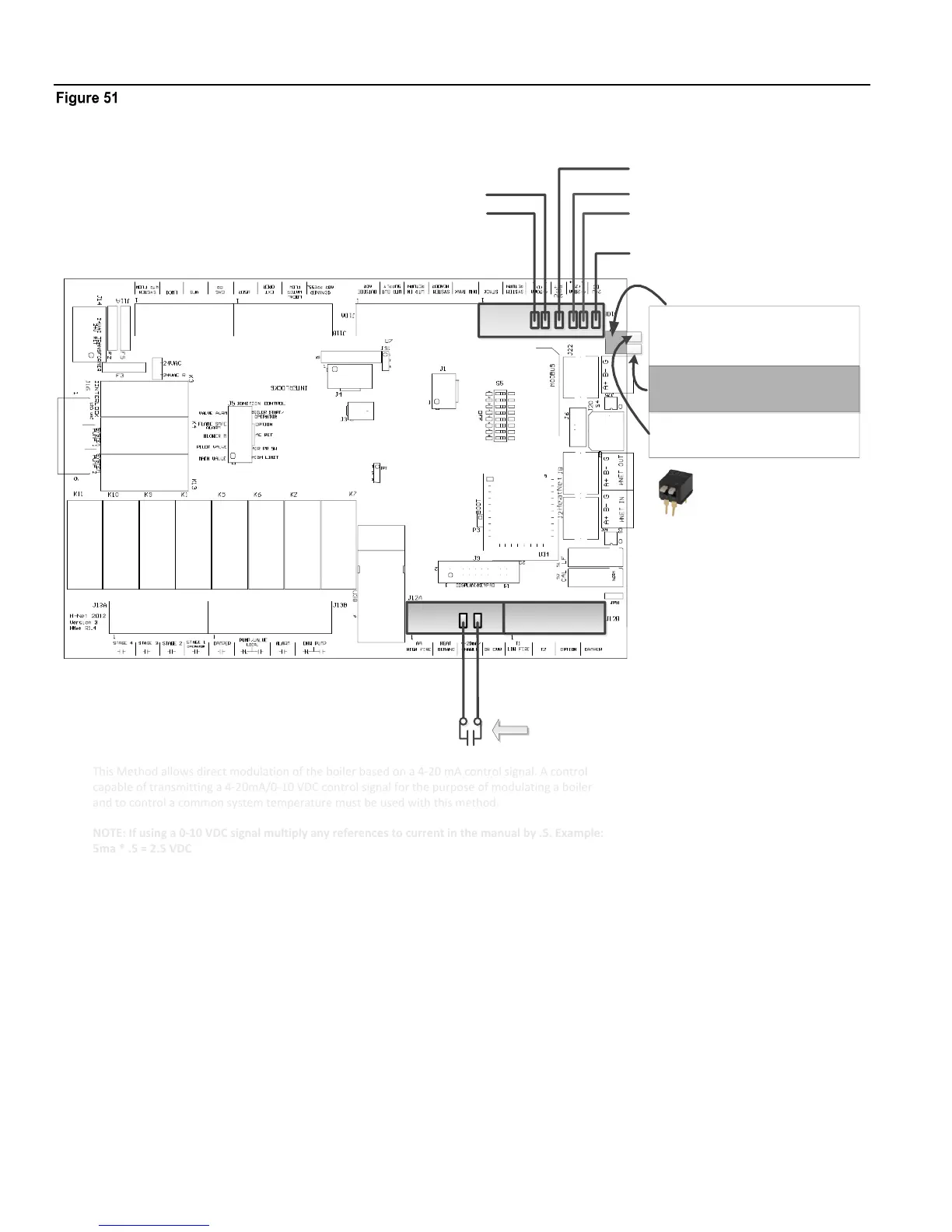
Heating Method 3 420 mA/ 0-10 VDC
Closing this contact enables the 4-20 mA/
0-10 VDC input on channel 1
Channel 1:
4-20mA/0-10VDC
Channel 2:
4-20mA/0-10VDC
(+)
24 VDC
(+)
(-)
(-)
24 VDC Return
This Method allows direct modulation of the boiler based on a 4-20 mA control signal. A control
capable of transmitting a 4-20mA/0-10 VDC control signal for the purpose of modulating a boiler
and to control a common system temperature must be used with this method.
NOTE: If using a 0-10 VDC signal multiply any references to current in the manual by .5. Example:
5ma * .5 = 2.5 VDC
This Method allows direct modulation of the boiler based on a 4-20 mA control signal. A control
capable of transmitting a 4-20mA/0-10 VDC control signal for the purpose of modulating a boiler
and to control a common system temperature must be used with this method.
NOTE: If using a 0-10 VDC signal multiply any references to current in the manual by .5. Example:
5ma * .5 = 2.5 VDC
S6 along with the
SETUP:ADVANCED:4-20mA INPUT
menu configures the channel for
operation.
S6 switch 1 DOWN: 4-20mA channel 1
S6 switch 1 UP: 0-10VDC channel 1
S6 switch 2 DOWN: 4-20mA channel 2
S6 switch 2 UP: 0-10VDC channel 2
1
2

Table of Contents

Related product manuals