EasyManua.ls Logo

RCI 8310 - Product Accessories Guide; Brackets for Mounting; Glass Door Mounting

RCI 8310
8 pages
Print Icon
To Next Page IconTo Next Page
To Next Page IconTo Next Page
To Previous Page IconTo Previous Page
To Previous Page IconTo Previous Page
Loading...
Product Accessories Guide (Separate installation instructions provided with accessories.)
Top Jamb bracket and angle bracket kit is required for
use when mounting the lock on a door that swings
inwards. Magnet mounts to the underside of an angle
bracket mounted on the frame. Armature plate mounts
to “Z” bracket assembly mounted to door face.
Available for all 8310 and 8320 locks.
Used in a narrow head jamb situation or for center-
hung doors. Any place where there is insufficient
frame depth to mount the lock.
Available in several different sizes and finishes.
Available for all 8310 and 8320 locks.
Required wherever there is insufficient space on the
frame header to mount the lock. The lock mounts to
the underside of the “L” bracket and the “L” bracket
then gets mounted to the doorframe.
Available in several different sizes and finishes.
Available for all 8310 and 8320 locks.
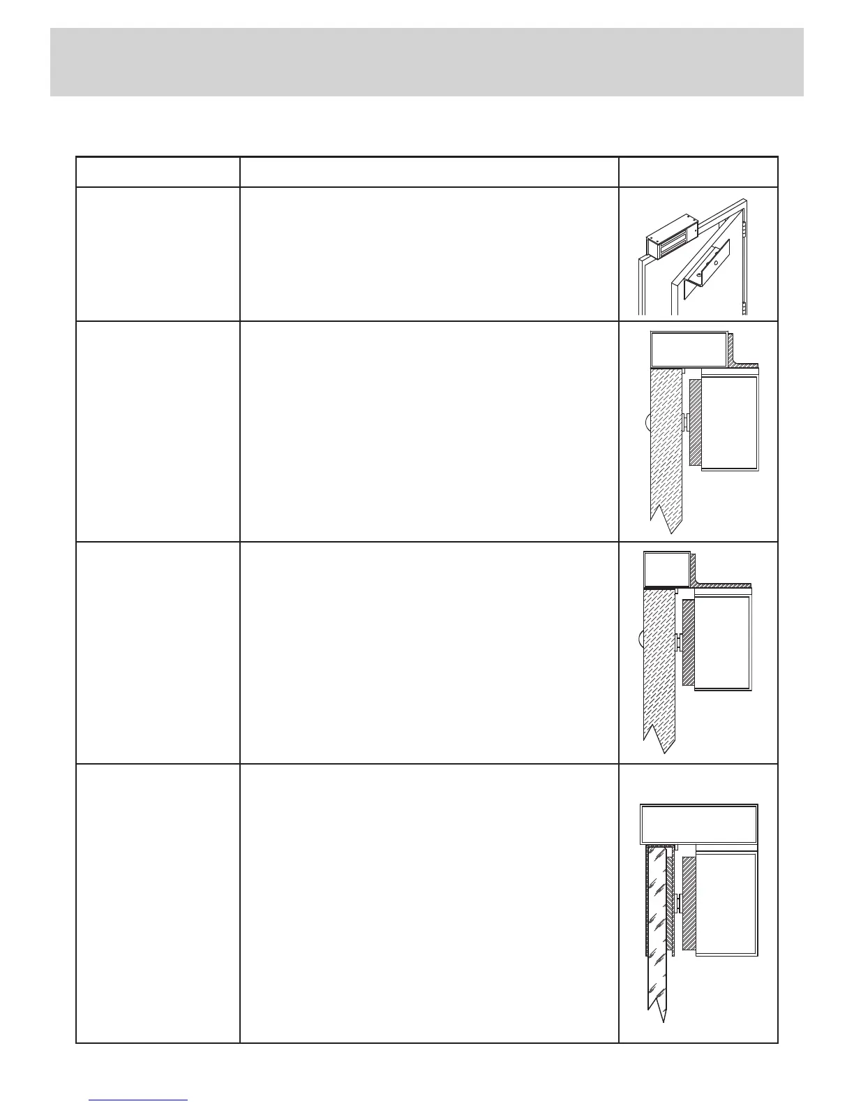
Allows an armature plate to be mounted to a glass or
Herculite door that does not have a frame. The Glass
Door Bracket is a “U”-shaped piece of 1/16” thick
material that slips over the top of the glass panel and
tightens to the glass with setscrews. The Armature
plate mounts directly to the surface of the bracket by
means of a threaded hole in the bracket assembly
plate.
Available for both 1/2” and 3/4” thick glass doors.
Top Jamb Bracket
Angle Bracket
“L” Bracket
Glass Door Bracket
Part Usage Example
8310, 8320, 8330 & 8340 Electromagnetic Lock
Installation Instructions (Continued)
5

Other manuals for RCI 8310

Related product manuals