EasyManua.ls Logo

RED COMPACT 18 - Page 55

RED COMPACT 18
76 pages
Print Icon
To Next Page IconTo Next Page
To Next Page IconTo Next Page
To Previous Page IconTo Previous Page
To Previous Page IconTo Previous Page
Loading...
53
1
7
3
5
5
4
6
2
V
1
3
7
8
5
5
4
11
6
10
9
2
V
12-MENU ENTRIES AND OPERATION
Technical Dept. - All rights reserved - Reproduction is prohibited
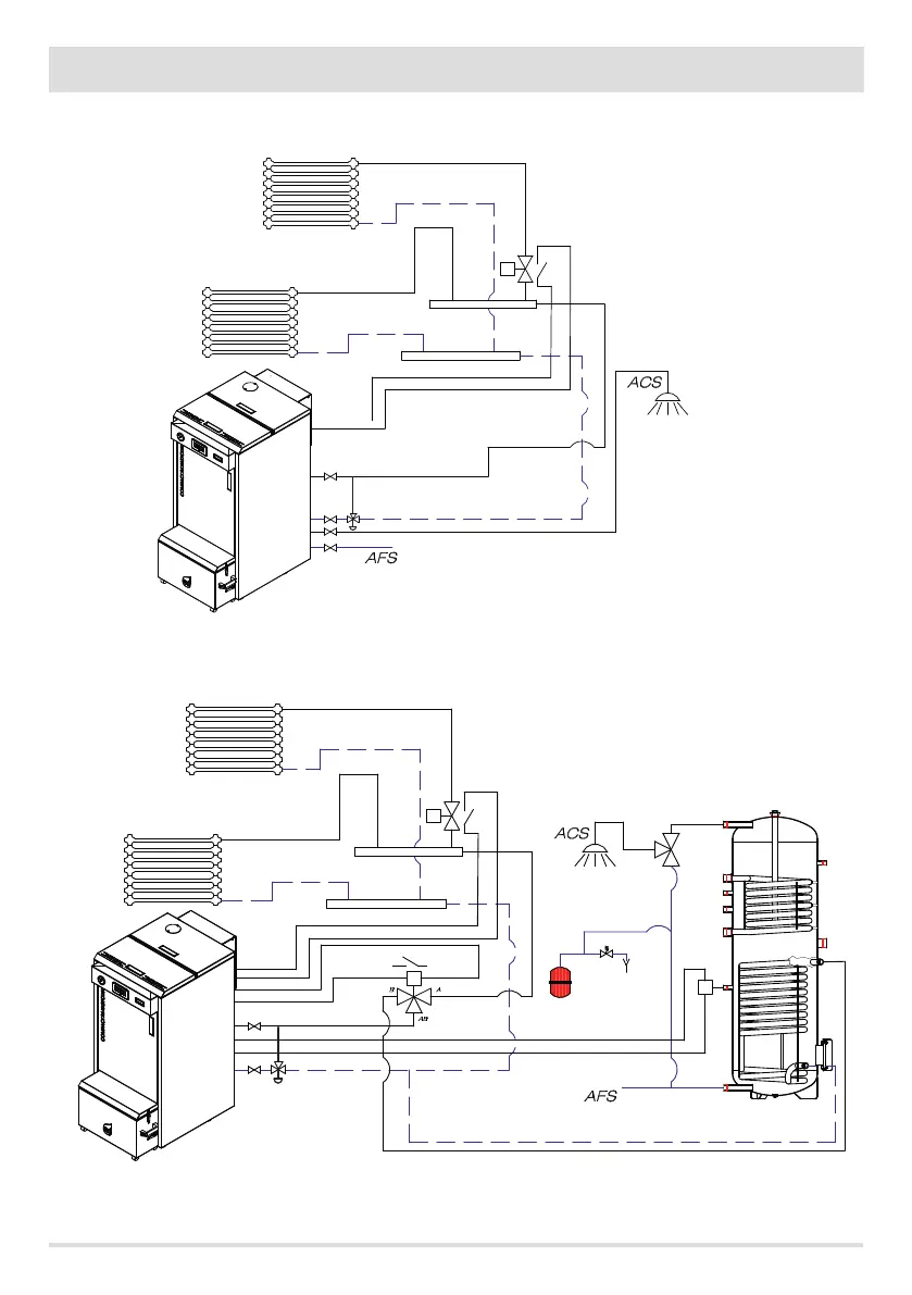
CONFIGURATION 2.1 (FACTORY SETTING)
CONFIGURATION 2.2 (*)
(*) DISCONNECT THE INTERNAL THREE-WAY VALVE AND FLOW SWITCH (IF PRESENT)

Other manuals for RED COMPACT 18

Related product manuals