EasyManua.ls Logo

RED COMPACT 24 - Drawings and Technical Specifications

RED COMPACT 24
60 pages
Print Icon
To Next Page IconTo Next Page
To Next Page IconTo Next Page
To Previous Page IconTo Previous Page
To Previous Page IconTo Previous Page
Loading...
14
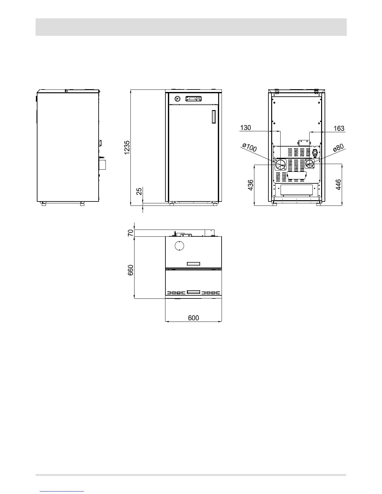
3-DRAWINGS AND TECHNICAL SPECIFICATIONS
DRAWINGS AND CHARACTERISTICS
LOTUS HYDRO DIMENSIONS (in cm)

Table of Contents

Other manuals for RED COMPACT 24

Related product manuals