EasyManua.ls Logo

RED COMPACT 24 - Preliminary Notions; System Configurations

RED COMPACT 24
60 pages
Print Icon
To Next Page IconTo Next Page
To Next Page IconTo Next Page
To Previous Page IconTo Previous Page
To Previous Page IconTo Previous Page
Loading...
33
1
7
3
5
5
4
6
2
1
3
7
8
5
5
4
11
6
10
9
2
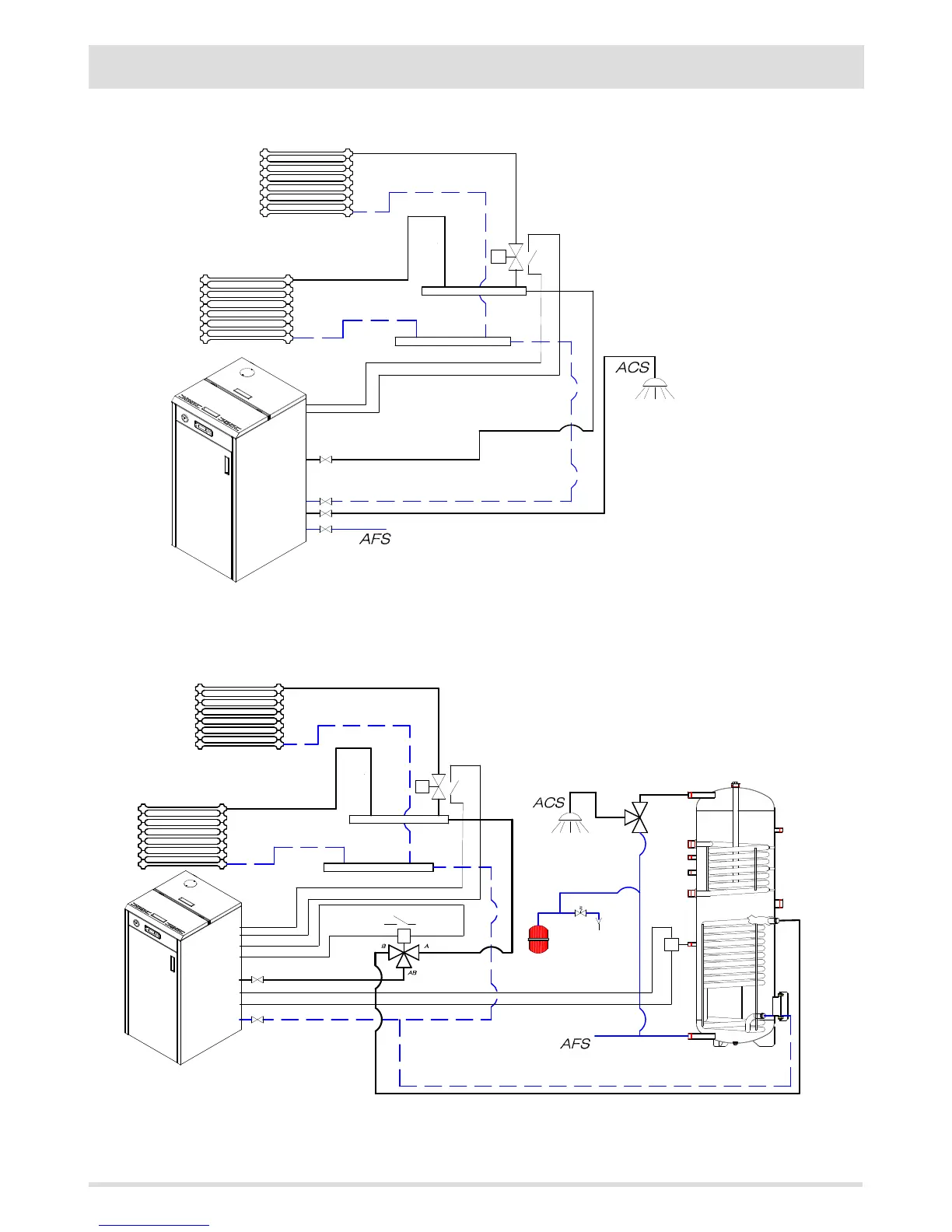
9 - PRELIMINARY NOTIONS
CONFIGURATION 2.1 (FACTORY SETTING)
CONFIGURATION 2.2
Technical Dept. - All rights reserved - Reproduction is prohibited

Table of Contents

Other manuals for RED COMPACT 24

Related product manuals