EasyManua.ls Logo

RedMax EBZ8050 - Carburetor Components

RedMax EBZ8050
64 pages
Print Icon
To Next Page IconTo Next Page
To Next Page IconTo Next Page
To Previous Page IconTo Previous Page
To Previous Page IconTo Previous Page
Loading...
P/L-6
EBZ8050/RH
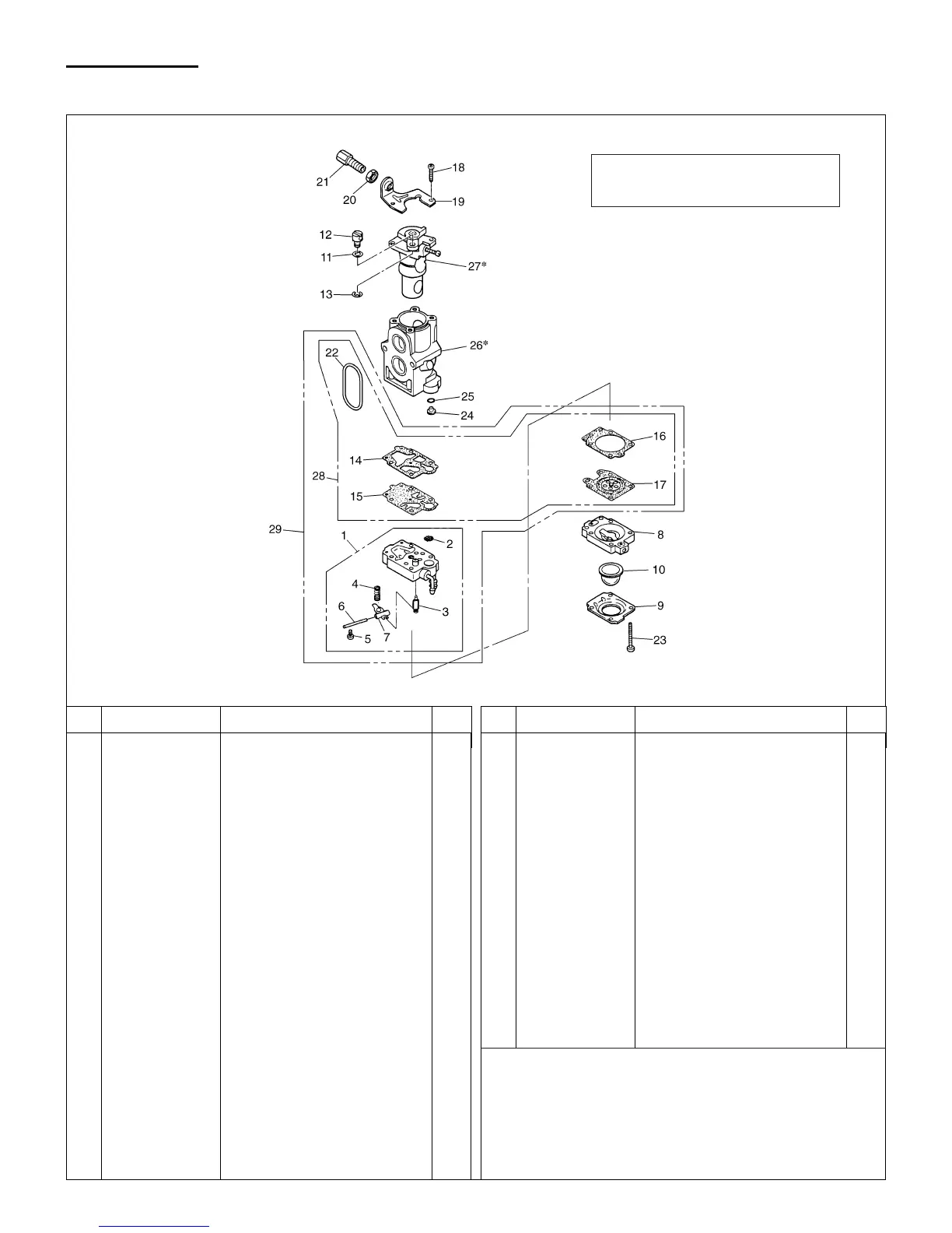
Fig.3 CARBURETOR COMPONENTS EBZ8050/EBZ8050RH (S/N 90100101and up)
13. Parts list
Key# Part Number Description Q'ty
1 T1108-81450 Body assy 1
2–Screen 1
3–Valve 1
4–Spring 1
5–Screw 1
6–Pin 1
7–Lever 1
8 1850-81490 Body 1
9 1850-81520 Cover 1
10 1751-81510 Pump 1
11 5500-81160 Washer 1
12 1881-81140 Swivel 1
13 1751-81130 Ring 1
14 4810-81410 Gasket 1
15 1065-81420 Diaphragm 1
16 1850-81470 Gasket 1
17 848-HE0-81K0 Diaphragm 1
18 1752-81110 Screw 2
19 5500-81120 Bracket 1
20 1751-81180 Nut 1
21 1918-81170 Screw 1
Key# Part Number Description Q'ty
22 848-H00-80A0 Ring, packing 1
23 1850-81530 Screw 4
24 2750-81250 Jet #59.0 1
25 1751-81240 O-Ring 1
26* Body 1
27* Valve assy 1
28 848-H18-0620 GASKET KIT 1
29 848-H18-0630 REBUILD KIT 1
[NOTE]
26*-BODY and 27*-VALVE ASSY are not supplied as an
individual part respectively, but supplied as a CARBURETOR
ASSY (P/NO. 848-H00-8100).
CARBURETOR ASSY (WYA-44)
P/NO. 848-H00-8100

Related product manuals