EasyManua.ls Logo

Regency F2400M - Installation; Masonry Chimney Installation; Masonry Fireplace Connection; Factory Built Chimney Installation

Regency F2400M
28 pages
Print Icon
To Next Page IconTo Next Page
To Next Page IconTo Next Page
To Previous Page IconTo Previous Page
To Previous Page IconTo Previous Page
Loading...
Regency Freestanding Woodstove
12



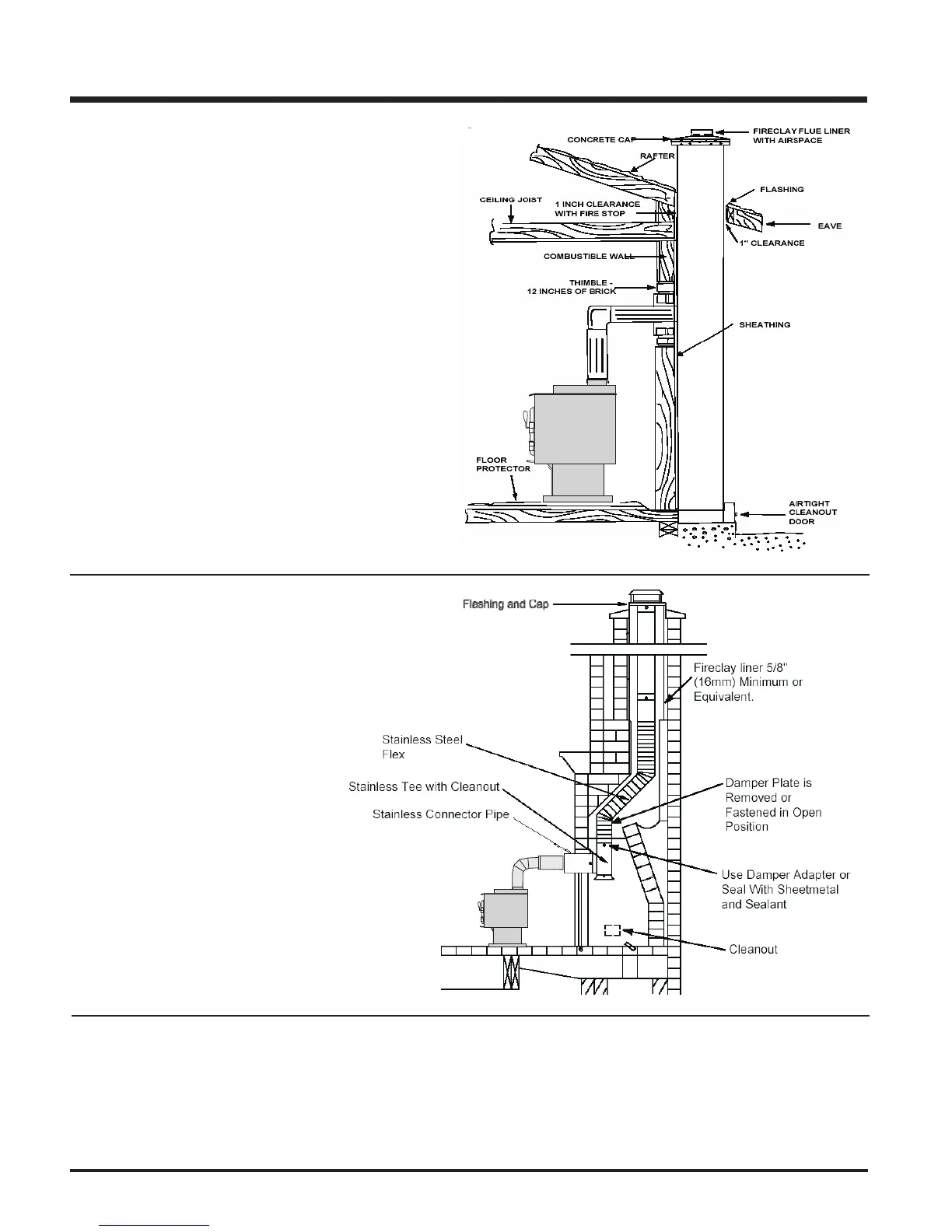
When a metal prefabricated chimney is used, the manufacturer's installation instructions must be followed. You must also purchase and install the
ceiling support package or wall pass-through and "T" section package, restops (where needed), insulation shield, roof ashing, chimney cap, etc.
Maintain proper clearance to the structure as recommended by the manufacturer. The chimney must be the required height above the roof or other
obstructions for safety and proper draft operation.


Ensure that a masonry chimney meets the mini-
mum standards of the National Fire Protection
Association (NFPA) by having it inspected by
a professional. Make sure there are no cracks,
loose mortar or other signs of deterioration and
blockage. Have the chimney cleaned before
the stove is installed and operated. When
connecting the stove through a combustible
wall to a masonry chimney, special methods
are needed.


There are listed kits available to connect a stove
to a masonry replace. The kit is an adapter
that is installed at the location of the replace
damper. The existing damper may have to be
removed to allow installation.
Liner
Listed

Other manuals for Regency F2400M

Related product manuals