EasyManua.ls Logo

Reliable Controls SS-L - Page 18

Default Icon
125 pages
Print Icon
To Next Page IconTo Next Page
To Next Page IconTo Next Page
To Previous Page IconTo Previous Page
To Previous Page IconTo Previous Page
Loading...
9
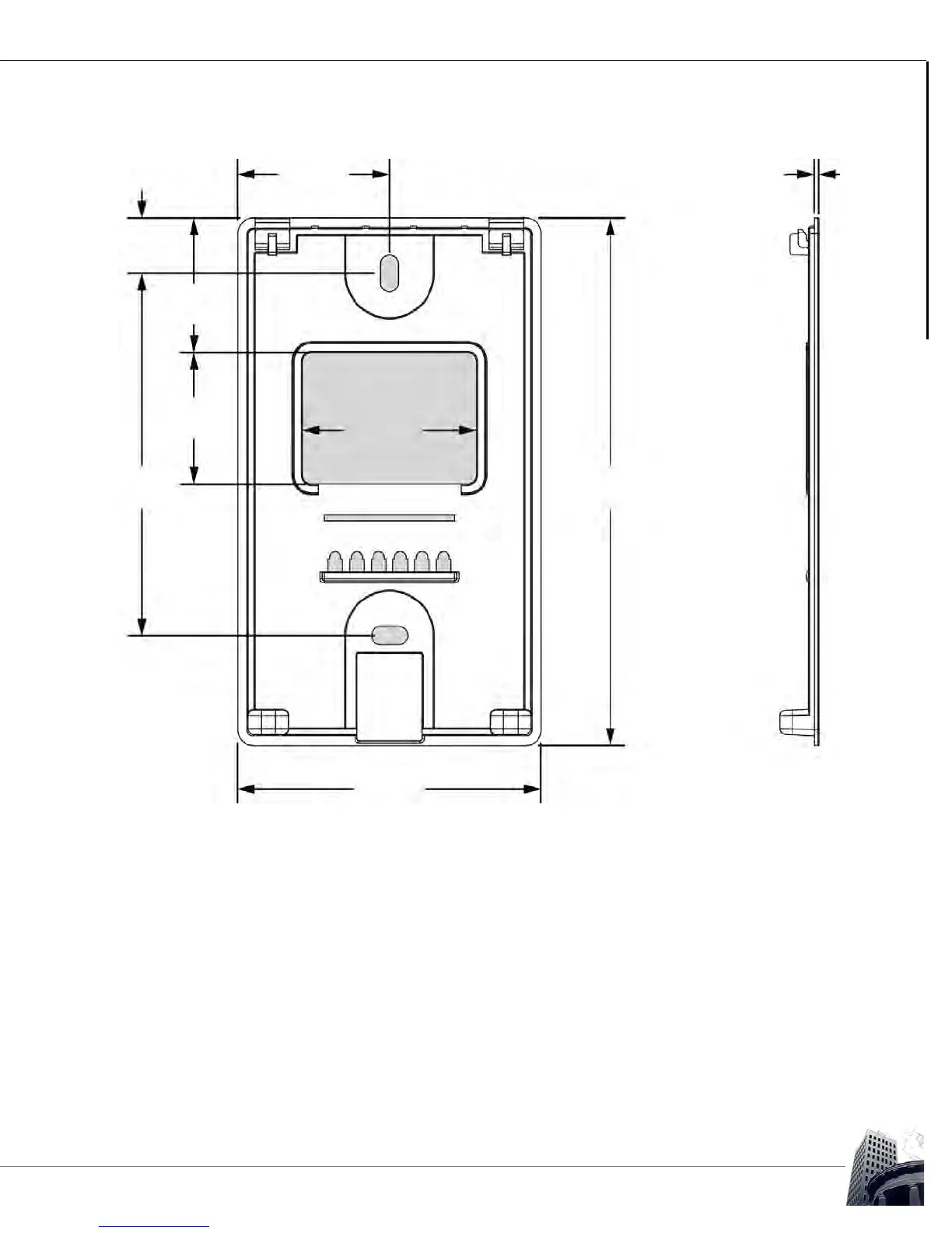
Physical Dimensions
USER GUIDE
GETTING STARTED
SMART-SENSOR
2004 – 2014 Reliable Controls
®
Corporation. All rights reserved.
FIGURE 7: STANDARD BACKPLATE PHYSICAL DIMENSIONS (USED FOR ALL SS/SS-L MODELS EXCEPT -CO2)
3.5 cm
(1
3
/8”)
1.3 cm
(
1
/2”)
3.0 cm
(1
3
/16”)
3.0 cm
(1
3
/16”)
8.2 cm
(3
1
/4”)
0.15 cm
(
1
/16”)
4.0 cm
(1
9
/16”)
7.0 cm
(2
3
/4”)
12.0 cm
(4
3
/4”)

Table of Contents

Related product manuals