EasyManua.ls Logo

Reznor SCE 350 - Installation-Continued; Electrical Supply and Connections

Reznor SCE 350
48 pages
Print Icon
To Next Page IconTo Next Page
To Next Page IconTo Next Page
To Previous Page IconTo Previous Page
To Previous Page IconTo Previous Page
Loading...
26
I-SCE (09-18) PN207697R9
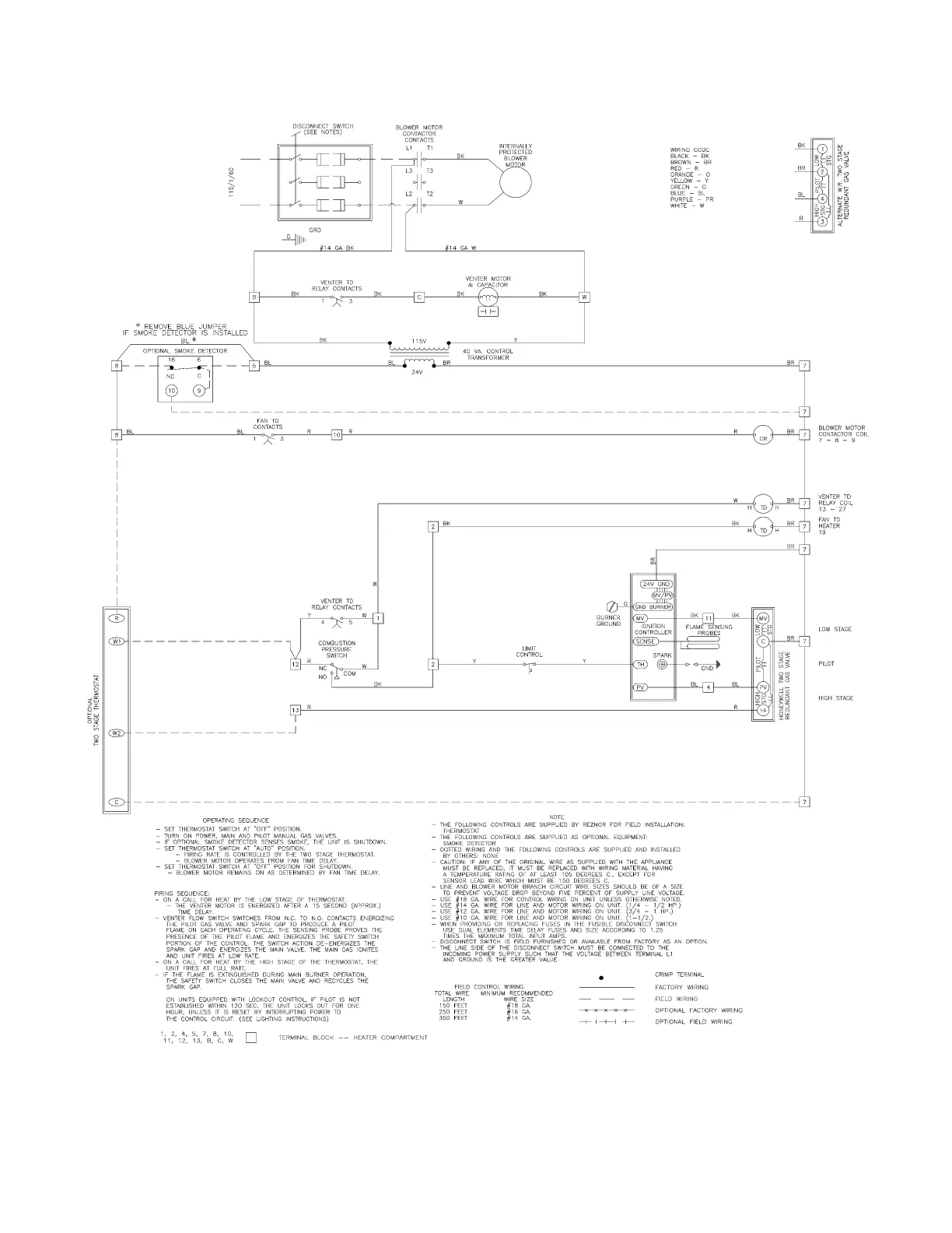
Figure 22. Typical Wiring Diagram: Model SCE with Two-Stage Gas Control
ELECTRICAL SUPPLY AND CONNECTIONS—CONTINUED

Table of Contents

Related product manuals