EasyManua.ls Logo

Rheem 10EBRGR - Page 6

Rheem 10EBRGR
40 pages
Print Icon
To Next Page IconTo Next Page
To Next Page IconTo Next Page
To Previous Page IconTo Previous Page
To Previous Page IconTo Previous Page
Loading...
6
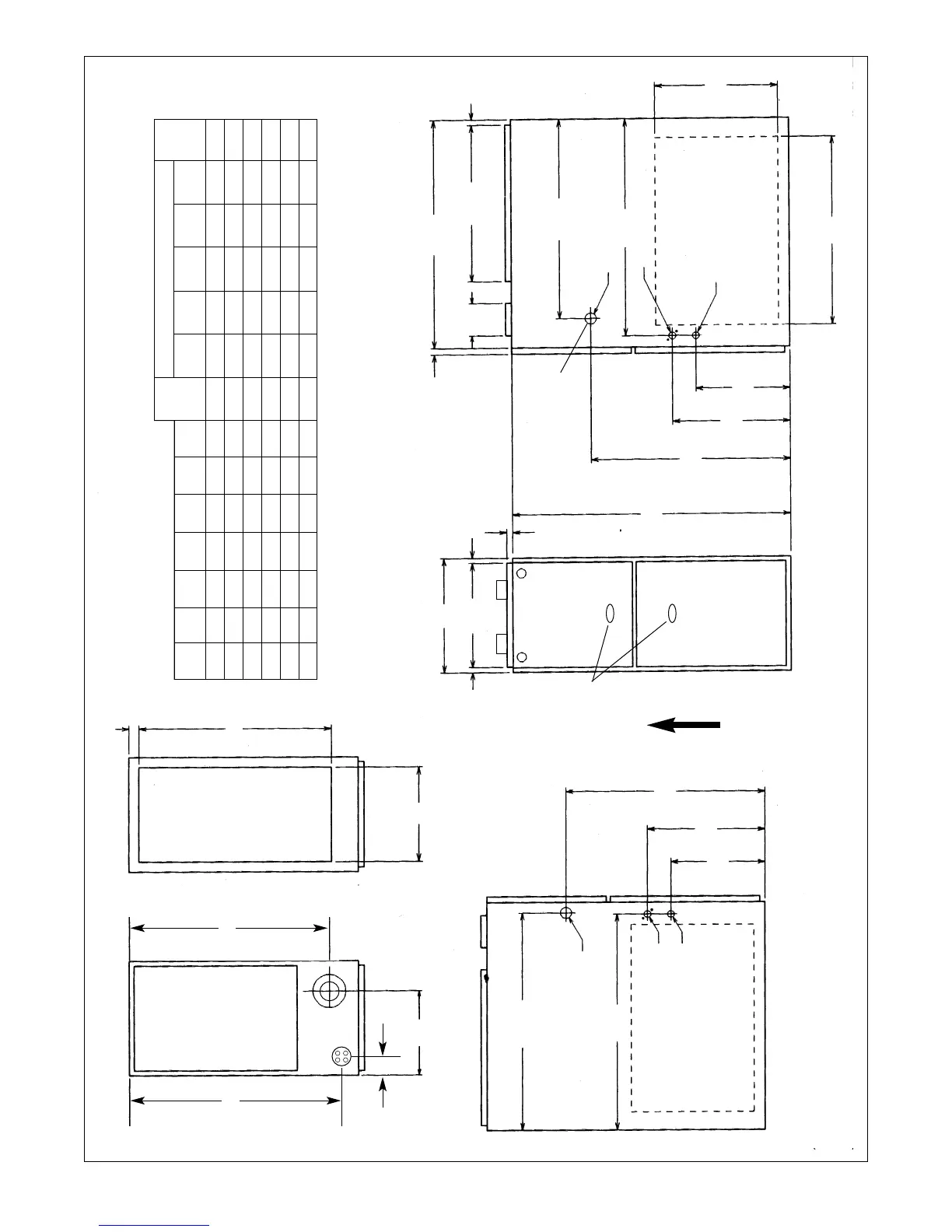
CLEARANCE TO COMBUSTIBLE MATERIAL (INCHES)
UPFLOW/HORIZONTAL MODELS
TOP
LEFT SIDE
FRONT
RIGHT SIDE
ALTERNATE
GAS CONNECTION
BOTTOM
RETURN
AIR
AIRFLOW
SUPPLY
AIR
26
13
/16
26
5
/8
24
11
/32
24
11
/32
19
/32
9
/16
24
7
/16
28
1
/16
26
5
/8
14
3
/
8
11
1
/2
34
1
5
/8 DIA.
23
15
20
D
7
/8 DIA.
7
/8 DIA.
19
/32
19
/32
3
/4
14
3
/8
11
1
/
2
1
1
/
4
23
17
/32
C
F
GAS CONNECTION
ELECTRICAL CONNECTION
OPTIONAL RETURN AIR CUTOUT
(EITHER SIDE) FOR USE WITH
EXTERNAL SIDE FILTER FRAME
LOW VOLTAGE
E
SIGHT
GLASS
A
B
FIGURE 2
UPFLOW/HORIZONTAL DIMENSIONS
IMPORTANT: This furnace is not approved or recommended for
installation on its back, with access doors facing upwards.
REDUCED CLEARANCE (IN.)
Model A B C D E F
Left Right
Back Top Front Vent
Ship.
Side Side Wgts.
05 14 12
27
/32 10
5
/8 11
1
/2 1
7
/8 04 01 36 85 lbs.
07 17
1
/2 16
11
/32 12
3
/8 15 2
1
/2 03 01 36 105 lbs.
10(A) 17
1
/2 16
11
/32 12
3
/8 15 2
1
/2 03 01 36 115 lbs.
10(B) 21 19
27
/32 14
1
/8 18
1
/2 2
1
/2 00 01 36 120 lbs.
12 24
1
/2 23
11
/32 15
7
/8 22 2
1
/2 00 01 36 140 lbs.
15 24
1
/2 23
11
/32 15
7
/8 22 2
1
/2 00 01 36 150 lbs.
May require 3to 4or 3or 5adapter.
May be 0with type B vent.
May be 1with type B vent.
24
1
/2
25.406

Related product manuals