EasyManua.ls Logo

Rheem RGPS series - Dimensional Data; Upflow Application Dimensions

Rheem RGPS series
12 pages
To Next Page IconTo Next Page
To Next Page IconTo Next Page
To Previous Page IconTo Previous Page
To Previous Page IconTo Previous Page
Loading...
Air
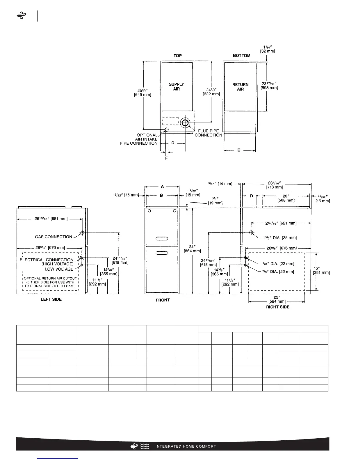
Dimensional Data
RGPS Series
6
Upflow Application
Dimensional Data: Upflow Model
MODEL
RGPS-
A B C D E
REDUCED CLEARANCE (IN.) [mm]
07
17
1
/2 [445] 16
11
/32 [415] 12
3
/8 [314]
15
1
/2 [381]
0
3 [76]
0 1 [25] 3 [76]
6 [152]
LEFT
SIDE
RIGHT
SIDE
BACK TOP FRONT VENT
SHIP. WGTS.
(LBS.) [Kg]
05 14
1
/2 [356] 12
27
/32 [326] 10
5
/8 [270]
11
1
/2 [292] 0
4 [102]
0 1 [25] 3 [76]
6 [152]
85 [38.6]
105 [47.6]
10BRGR &
10EBRJR
21
1
/2 [533] 19
27
/32 [504] 14
1
/8 [359]
18
1
/2 [470] 0 0 0 1 [25] 3 [76]
6 [152]
10EA 17
1
/2 [445] 16
11
/32 [415] 12
3
/8 [314]
15
1
/2 [381] 0
3 [76]
0 1 [25] 3 [76]
6 [152]
115 [52.2]
120 [54.4]
15 24
1
/2 [622] 23
11
/32 [593] 15
7
/8 [403]
22
1
/2 [559] 0 0 0 1 [25] 3 [76]
6 [152]
12 24
1
/2 [622] 23
11
/32 [593] 15
7
/8 [403]
22
1
/2 [559] 0 0 0 1 [25] 3 [76]
6 [152]
140 [63.5]
150 [68] .
F
2
1
/2 [64]
1
7
/8 [48]
2
1
/2 [64]
2
1
/2 [64]
2
1
/2 [64]
2
1
/2 [64]
NOTES: May require a 3" [76 mm] to 4" [102 mm] or 3" [76 mm] to 5" [127 mm] adapter.
May be 0" [0 mm] with type B vent.
May be 1" [25 mm] with type B vent.
Furnaces must be vented in accordance with the National Fuel Gas Code, ANSI Z223.1 and/or Can/CGA-B149 Installation Codes and in accordance with
local codes.
[ ] Designates Metric Conversions

Related product manuals