EasyManua.ls Logo

RIB NORMAL - Page 10

RIB NORMAL
Print Icon
To Next Page IconTo Next Page
To Next Page IconTo Next Page
To Previous Page IconTo Previous Page
To Previous Page IconTo Previous Page
Loading...
F
R
A
N
Ç
A
I
S
E
Barrière NORMAL
- Photocellules p/protection
- Poteau zingué p/cellule
- Cordon de sécurité avec Photocellule
- Boucle magnetique
- Selecteur
- Antenne radio
- Arre d'urgence
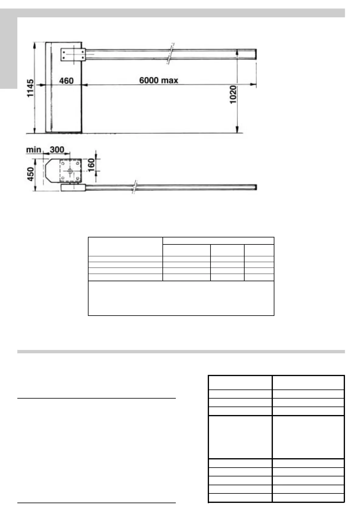
CARACTERISTIQUES TECHNIQUES MOTOREDUCTEUR
Motoréducteur irréversible "ambidextre" utilisé pour actionner des
lisses pouvant atteindre jusqu'à 6 m de long.
La colonne peut être fournie en version galvanisée et vernie.
La lisse de la barrière peut être fournie en un seul bloc ou bien, au cas
elle rencontrerait des obstacles pendant son actionnement, il est
possible de la commander désarticulée en spécifiant la hauteur de
l'obstacle à partir du sol (fig. 2).
En plus la lisse peut être fournie en une pièce unique avec ridelle
suspendue (Fig. 3, 5).
La lisse de la barrière est prête pour recevoir un cordon pneumatique
ou un cordon à cellule photo-électrique (fig. 4).
N.B.: Il est obligatoire d’adapter les caracteristiques du barrière aux
normes et lois en vigueur.
Fig.1
CARACTÉRISTIQUES
TECHNIQUES
Longueur maxi de la lisse
Temps d'ouverture
Couple maxi arbre sortie
Alimentation et frequence CEE
Puissance moteur
Absorption
Condensateur
Nbre de cycles
Type d'huile
Poids maximun
Indìce de protection IP
Bruit
Volume
NORMAL
m. 6
s11
Nm 300
230V~ 50Hz
W 130
A0,6
µF6,3
1000 - 15s/2s
IP MELLANA 100
Kg 145
db <70
m
3
0,237
IP 557
TYPE DE COMMANDE USAGE DE LA FERMETURE
Personnes expertes Personnes expertes Usage illimité
(au dehors d’une zone publique*) (zone publique)
homme presente A B
impulsion en vue (capteur) C C C e D
impulsion hors de vue (boîtier de commande) C C e D C e D
automatique C e D C e D C e D
* example typique: fermetures qui n’ont pas d’accès à un chemin public
A: Touche de commande à homme present (à action maintenue), code ACG2020
B: Sélecteur à clef à homme mort, code ACG1010
C: Cordon, code ACG3010
D: Cellules photo-électriques, code ACG8026
Componenti da installare secondo la norma EN12453
FRANÇAISE

Other manuals for RIB NORMAL

Related product manuals