EasyManua.ls Logo

RIB NORMAL - Page 13

RIB NORMAL
Print Icon
To Next Page IconTo Next Page
To Next Page IconTo Next Page
To Previous Page IconTo Previous Page
To Previous Page IconTo Previous Page
Loading...
F
R
A
N
Ç
A
I
S
E
Pag. 13 di 36
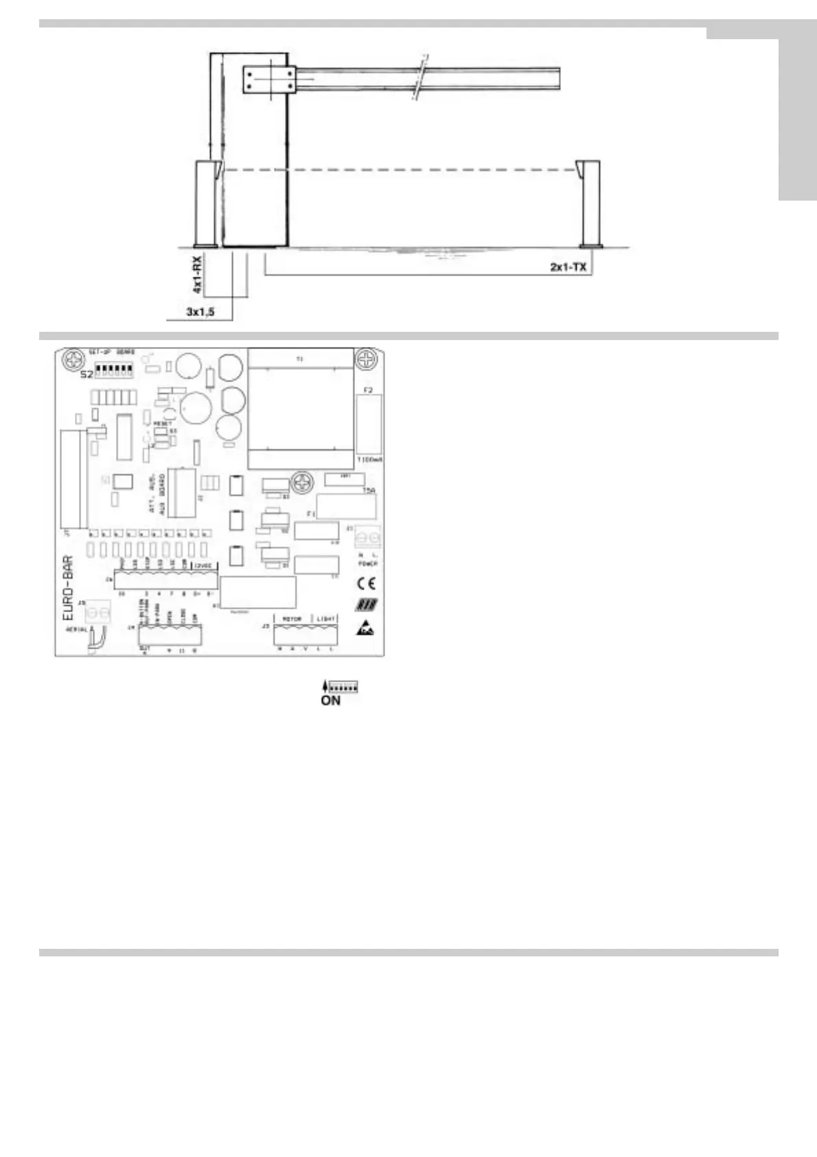
Fig.10
LEDS
L1 - (Jaune) - Signale la présence de tensions secondaires (12 Vdc)
L2 - (Rouge) - Indicateur de mémorisation des temps
MEMORISATION DES TEMPS
Opération à effectuer lorsque la barre est fermée et le fin de course de fermeture est
pressé par la came.
REMARQUE - Les accessoires de sécurité sont actifs pendant l'ouverture et la
programmation des temps; il est donc nécessaire d’éviter les passages à
proximité de l'installation.
Si cela devait avoir lieu, la barre s'arrête et il est nécessaire de remettre la barre en
fermeture et de refaire la programmation.
Si l'une des sécurités est engagée en fermeture, il n’est pas nécessaire de refaire la
programmation, dans la mesure les temps ont déjà été mémorisés; la barre exécute
donc une inversion en ouverture et elle se referme à la prochaine commande.
Normalement, lorsque la barre est fournie, les temps de fonctionnement sont déjà insérés.
Toutefois, le temps d’attente avant la fermeture n'est que de quelques secondes.
Pour personnaliser ce temps, il est obligatoire de faire une nouvelle mémorisation. Pour
ce faire, suivre la démarche suivante:
1) En agissant sur le déblocage manuel, fermer la barre et s'assurer que le fin de course
de fermeture est pressé par la came; enfin, bloquer la barre en vissant le blocage.
2) Appuyer sur le bouton-poussoir S1 et le relâcher immédiatement; la Led L2 (rouge)
BORNIER J1
NL1 - Alimentation 230V 50/60 Hz
CCONNECTEUR J2
Au moyen d'une carte fournie en option (Carte 1 Relais code ACQ9075), il alimente une
veilleuse pendant une durée programmable de 1 seconde à 3 minutes (40 W max.).
Autrement, il peut alimenter une carte fournie en option pour la gestion d'un
électroaimant (fournie avec le set de la colonne à aimant, code ACG8070).
Pour tout renseignement sur les cartes auxiliaires, demander les instructions
d’installation spécifiques.
BORNIER J3
L/L - Sortie alimentation clignotant électronique 230 Vac
U - Commun moteur
V/W - Inverseurs moteur
BORNIER J4
K-OUT - Contact fermeture): en mode de fonctionnement normal (Fig. 8), il opère
comme impulsion simple. En mode Park (Fig. 9), il valide la fermeture une
seconde après le passage du véhicule.
IN-PARK
- Contact fermeture), en mode Park, s'il est raccordé à un capteur
magnétique ou à une cellule photoélectrique, il signale la présence d'un
véhicule à proximité de l'ouverture.
9 - Bouton-poussoir d’ouverture (à fermeture)
11 - Bouton-poussoir de fermeture (à fermeture)
8 - Commun des contacts.
BORNIER J5
Bornes de raccordement du câble coaxial de l’antenne (type RG58-52).
N.B.: Veiller à ce que la masse ne touche pas le fil central du câble car cela
pourrait limiter la portée des telecommandes.
BORNIER J6
10 - Contact photocellules et cordons (à ouverture)
LSS - Contact fin de course validant le ralentissement du moteur à l'ouverture comme
à la fermeture (à fermeture).
2 - Bouton-poussoir de Stop (à ouverture)
4 - Contact de fin de course arrêtant l'ouverture (à ouverture)
7 - Contact de fin de course arrêtant la fermeture (à ouverture)
8 - Commun des contacts
D+/D- - Alimentation 12Vcc pour photocellules.
CONNECTEUR J7
Connecteur pour le logement de radiorécepteurs (seront alimentés en 12 Vdc)
S2 - MICROINTERRUPTEURS POUR LE RÉGLAGE DE LA CENTRALE
Dip 1 - Disponible pour les installations futures.
Dip 2 - Clignotant
ON - sortie fixe, utiliser le clignotant avec la carte ACG7010 (pour barrière Eco).
OFF -
sortie clignotant, utiliser clignotant Diamond Line ACG7050 (pour barrière Normal).
Dip 3 - Photocellules.
ON - Interrompent en ouverture comme en fermeture.
OFF - N’interrompent qu’en fermeture.
Dip 4 - Mode de Fonctionnement
ON - fonctionnement réservé aux parkings (PARK)
OFF - fonctionnement normal
Dip 5 - Temps d’attente avant d’avoir la Fermeture Automatique (5 minutes max.)
ON - validé
OFF - invalidé
Dip 6 - Pré-clignotement lampes
ON - le clignotant est activé 3 secondes avant le moteur
OFF - le clignotant est activé en même temps que le moteur
S3 - RESET
Chaque fois qu'un changement de position des Dip est effectué, ponter ensuite S3
pendant au moins une seconde (cette opération peut être également exécutée à
l'aide d'un tournevis) ou le coffret ne pas accept le noveau changements.

Other manuals for RIB NORMAL

Related product manuals