EasyManua.ls Logo

RIB NORMAL - Page 24

RIB NORMAL
Print Icon
To Next Page IconTo Next Page
To Next Page IconTo Next Page
To Previous Page IconTo Previous Page
To Previous Page IconTo Previous Page
Loading...
DEUTSCH
Pag. 24 di 36
D
E
U
T
S
C
H
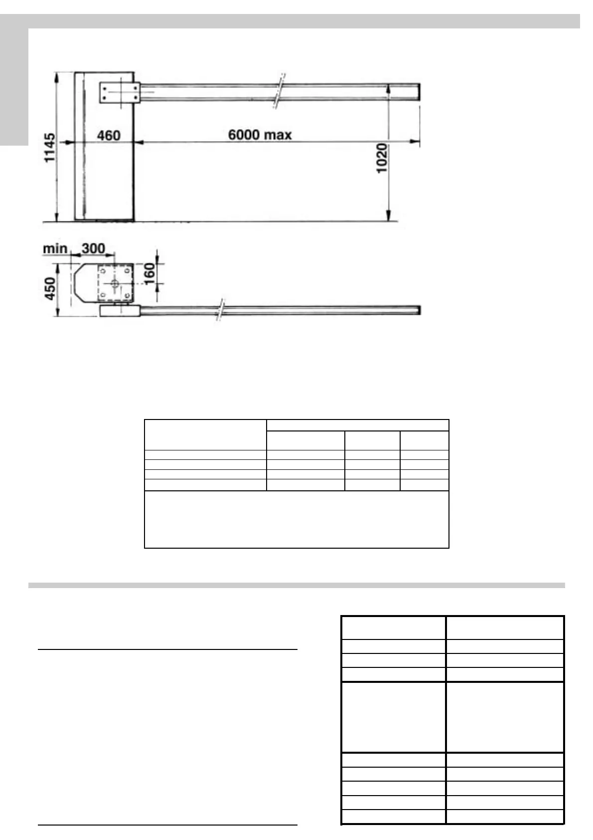
TECHNISCHE DATEN GETRIEBEMOTOR
Selbsthemmender, auf beiden Seiten montierbarer Getriebemotor zum
Antrieb von Schrankenbäumen mit Länge bis zu 6 m. Das
Schrankengehäuse ist aus verzinktem und lackiertem. Die Schranke ist
außerdem mit elektronischer Steuerung, Endschaltern, Endanschlägen
und Ausgleichs-Druckfedern ausgestattet. Der Schrankenbaum ist in
einem einzigen Stück bzw. im Fall von oberen Hindernissen als
Knickbaum lieferbar. Im letzteren Fall ist die Höhe des Hindernisses
vom Boden anzugeben (Fig. 2). Außerdem, kann auch mit Hängegitter
geliefert werden (Fig. 3, 5).
Der Schrankenbaum ist für den Einbau einer pneumatischen- bzw.
einer Fotozellensicherheitskontaktleiste vorgerüstet (Fig. 4).
ACHTUNG: Mann ist verpflichtet die Eigenschaften des Schranke zu
die Gesetznormen in Einklang zu bringen.
NORMAL Schranke
- Photozellen
- Verzinkte Metallsäule als
Photozellenträger
- Photozellen Sicherheitsfühlleiste
- Magnetschleife
- Schlüsselschalter
- Antenne
- Notschalter
TECHNISCHE
EIGENSCHAFTEN
Max. Baumlänge
Öffnungszeit
Max. Drehmoment
Stromspannung und frequenz CEE
Motorleistung
Stromaufnahme
Kondensator
Anzahl der Zyklen
Ölsorte
Motorgewicht
Schutzart IP
Geräusch
Volumen
NORMAL
m. 6
s11
Nm 300
230V~ 50Hz
W 130
A0,6
µF6,3
1000 - 15s/2s
IP MELLANA 100
Kg 145
db <70
m
3
0,237
IP 557
STEUERUNGSSYSTEM ANWENDUNG DER SCHLIESSUNG
Fachpersonen Fachpersonen Grenzlose
(außer einem öffentlichen Platz*) (öffentlicher Platz)
Anwendung
mit Totmannschaltung A B
mit sichtbaren Impulsen
(z. B. Sensor)
C C C e D
mit nicht sichtbaren Impulsen
(z. B. Fernsender)
C C e D C e D
automatisch C e D C e D C e D
* ein Musterbeispiel dafür sind jene Türe, die keine Zufahrt zu einem öffentlichen Weg haben
A: Betriebstaste mit Totmannschaltung (das heißt, aktivieren sie eine Funktion, solange man sie gedrückt hält),
wie Code ACG2020
B: Schlüsselselektor mit Totmannschaltung, wie Code ACG1010
C: Kontaktleiste, wie Code ACG3010
D: Photozelle, wie Code ACG8026
Komponenten zur Installation nach der Norm EN1253
Abb. 1

Other manuals for RIB NORMAL

Related product manuals