EasyManua.ls Logo

RIB NORMAL - Page 6

RIB NORMAL
Print Icon
To Next Page IconTo Next Page
To Next Page IconTo Next Page
To Previous Page IconTo Previous Page
To Previous Page IconTo Previous Page
Loading...
SEGNALAZIONI LED
L1 - (Giallo) - Segnala la presenza delle tensioni secondarie (12Vdc).
L2 - (Rosso) - Indicatore memorizzazione tempi.
MEMORIZZAZIONE TEMPI
Operazione da eseguire a sbarra chiusa (con finecorsa di chiusura premuto).
NOTA - Gli accessori di sicurezza sono attivi durante l’apertura e la programmazione
tempi, pertanto è necessario evitare transiti in prossimità dell’impianto.
Se questo dovesse succedere, si avrà il fermo sbarra e sarà necessario riposizionare in
chiusura la sbarra ed eseguire una nuova programmazione.
Se una delle sicurezze viene impegnata in chiusura, non sarà necessario eseguire una
nuova programmazione in quanto i tempi sono già stati memorizzati, quindi la sbarra
effettuerà un’inversione in apertura e ad un successivo comando richiuderà.
Normalmente la sbarra viene fornita con i tempi di funzionamento già inseriti, tuttavia il
tempo di attesa prima della chiusura automatica risulta essere di pochi secondi.
Per personalizzare questo tempo è obbligatorio procedere ad una nuova memorizzazione
come segue:
1) Agendo sullo sblocco manuale chiudere la sbarra ed accertarsi che il finecorsa di
chiusura sia premuto dalla camme, poi bloccare la sbarra avvitando lo sblocco.
2) Premere il pulsante S1 e rilasciarlo immediatamente, il led L2 (rosso) si accende e
rimane acceso.
I
T
A
L
I
A
N
O
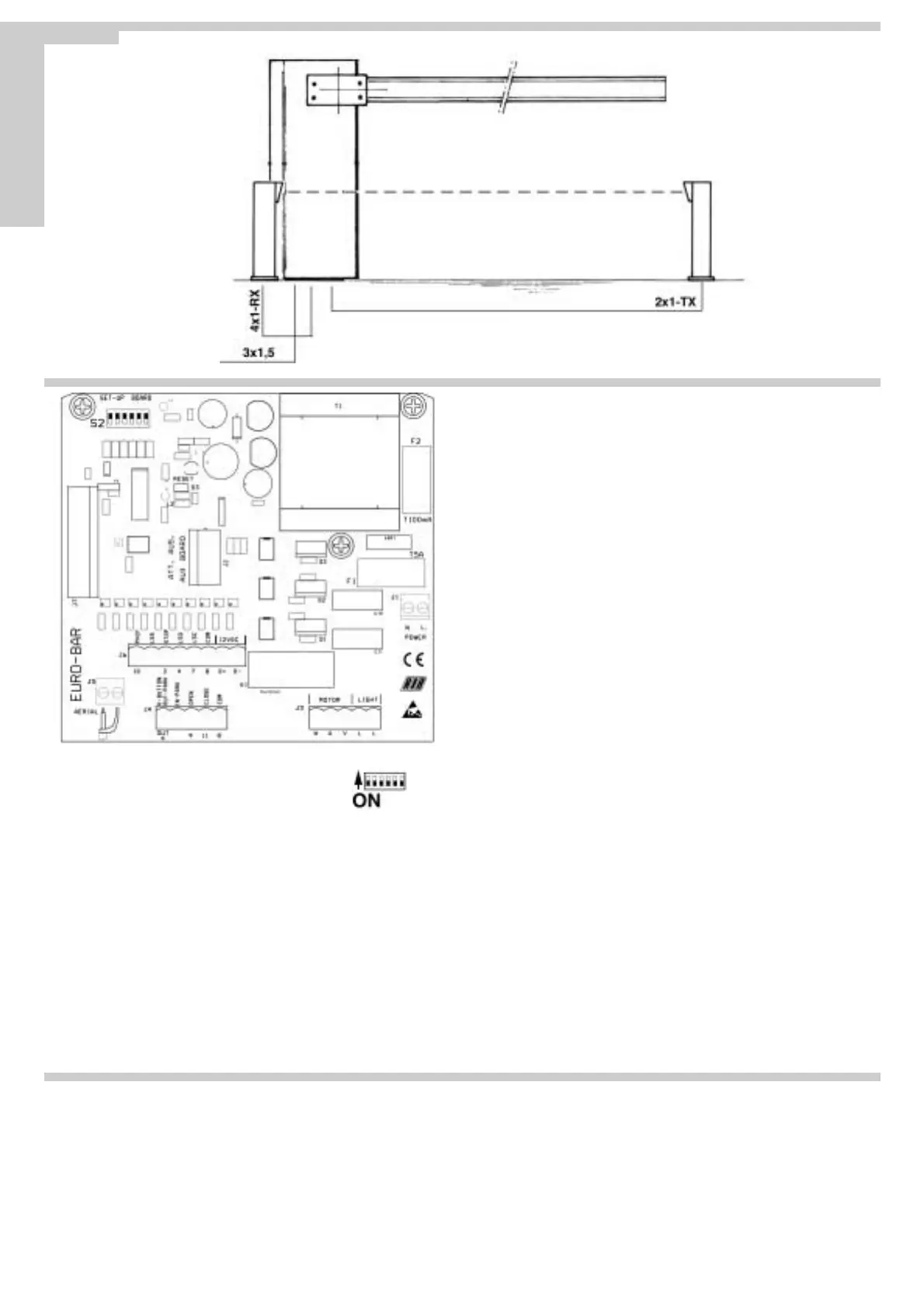
MORSETTIERA J1
NL
1
- Alimentazione 230V 50/60 Hz.
CONNETTORE J2
Alimenta tramite una schedina opzionale (Scheda 1 Relé cod.ACQ9075) una lampada di
cortesia per un tempo settabile ad 1 secondo oppure a 3 minuti (40W max).
Oppure alimenta una schedina opzionale per la gestione di un elettromagnete (fornita
con il Set colonnina con magnete cod. ACG8070).
Per informazioni inerenti le schede ausiliarie richiedere le istruzioni specifiche di
installazione.
MORSETTIERA J3
L/L - Uscita alimentazione lampeggiatore elettronico 230Vac.
U - Comune motore
V/W - Invertitori motore
MORSETTIERA J4
K-OUT - Contatto (NA), in funzionamento normale (Fig. 8) è operativo come impulso
singolo, in funzionamento park (Fig. 9) abilita la chiusura dopo 1 secondo
dall’avvenuto transito del veicolo.
IN-PARK - Contatto (NA),in funzionamento park se collegato ad un sensore magnetico o
ad una fotocellula segnala la presenza del veicolo in prossimità dell’apertura.
9 - Pulsante di apertura (NA).
11 - Pulsante di chiusura (NA).
8 - Comune dei contatti.
MORSETTIERA J5
Morsetti di collegamento del cavo coassiale d’antenna (tipo RG58-52).
N.B.: Fate attenzione che la massa non tocchi il filo centrale del cavo perché può
limitare la portata dei telecomandi.
MORSETTIERA J6
10 - Contatto fotocellule e coste (NC)
LSS - Contatto finecorsa che abilita il rallentamento del motore sia in apertura che
in chiusura (NA)
2 - Pulsante di Stop (NC)
4 - Contatto finecorsa che ferma l’apertura (NC)
7 - Contatto finecorsa che ferma la chiusura (NC)
8 - Comune dei contatti
D+/D- - Alimentazione 12Vdc per fotocellule (ATTENZIONE al loro settaggio!)
CONNETTORE J7
Connettore per l'alloggiamento di radio ricevitori (verranno alimentati a 12Vdc)
S2 - MICROINTERRUTTORI PER IL SETTAGGIO DELLA CENTRALINA
Dip 1 - A disposizione per implementazioni future.
Dip 2 - Lampeggiatore
ON - uscita fissa
OFF - uscita lampeggiante -default
Dip 3 - Fotocellule
ON - interrompono sia in apertura che in chiusura.
OFF - interrompono solo in chiusura - default
Dip 4 - Tipo di Funzionamento
ON - funzionamento dedicato a parcheggi (PARK).
OFF - funzionamento normale - default
Dip 5 - Tempo di attesa di Chiusura Automatica (max 5 minuti).
ON - abilitato
OFF - disabilitato - default
Dip 6 - Prelampeggio
ON - il lampeggiatore è attivo 3 sec. prima del motore.
OFF - il lampeggiatore è attivo contemporaneamente al motore - default
S3 - RESET
Ogni volta che viene eseguito un cambiamento alla posizione dei Dip, ponticellate
successivamente S3 almeno per un secondo o la centralina non accetterà le nuove
impostazioni (questa operazione può essere eseguita anche con un cacciavite).
Pag. 6 di 36
Fig.10

Other manuals for RIB NORMAL

Related product manuals