EasyManua.ls Logo

Riello RTC 2300-80 - Page 28

Riello RTC 2300-80
56 pages
Print Icon
To Next Page IconTo Next Page
To Next Page IconTo Next Page
To Previous Page IconTo Previous Page
To Previous Page IconTo Previous Page
Loading...
28
INSTALLATION
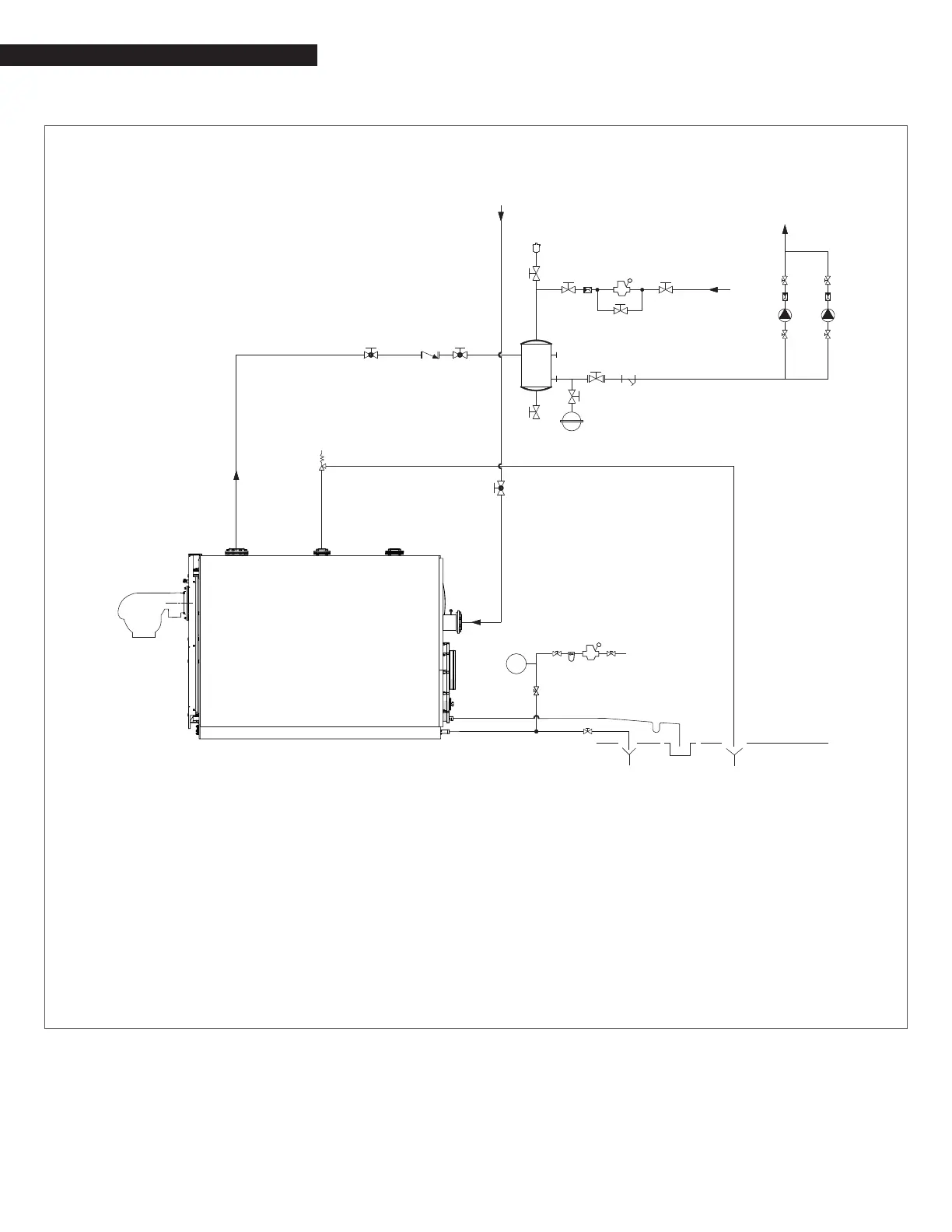
Single Boiler Piping Schematic Type B
RTC 5500-80
15
6
3
3
3
11
3
3
3
3
14
13
16
16 1617
10
9
7
5
3
5
4
3
3
4
3
18
15
10
12
3
3
3
8
19
1
2
LT (*)
CENTRAL
HEATING
RETURN
CENTRAL
HEATING
SUPPLY
MAKE-UP
WATER
FLOW
LT RETURN
WATER
INLET
1 Boiler
2 Burner
3 Isolation valves
4 Central heating system pump
5 Non-return valves
6 Automatic vent valve
7 Boiler safety valve
8 Boiler drain valve
9 Y strainer
10 Pressure reducer
11 Expansion tank
12 Water softener lter
13 Siphon
14 Condensate outlet
15 Drain
16 Isolation valve
17 Non-return valve
18 Air separator
19 Pressure gauge
(*) LT Low Temperature

Table of Contents

Related product manuals