EasyManua.ls Logo

RiTTO 1 7817 - Page 3

RiTTO 1 7817
Print Icon
To Next Page IconTo Next Page
To Next Page IconTo Next Page
To Previous Page IconTo Previous Page
To Previous Page IconTo Previous Page
Loading...
3
D
Installation
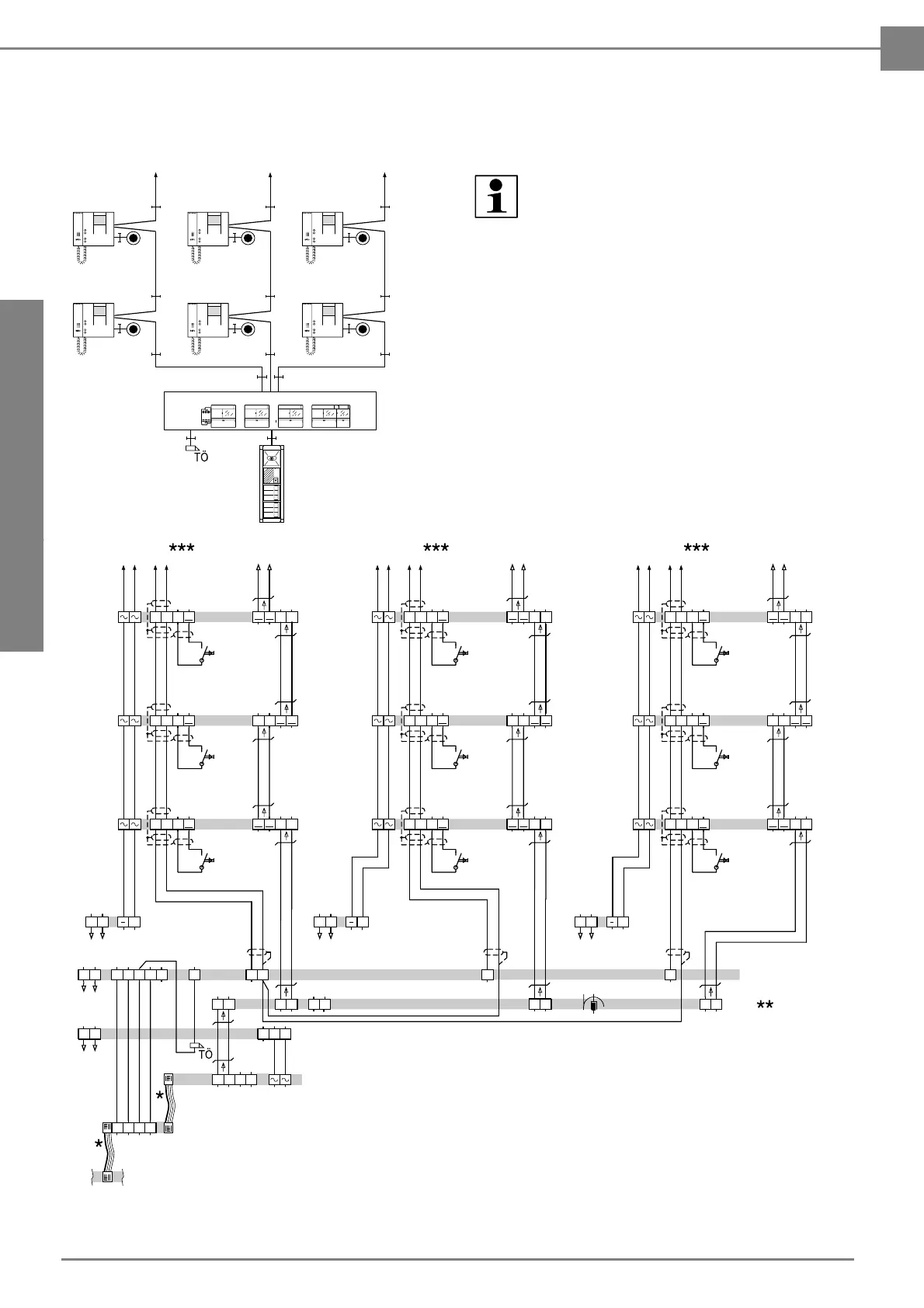
Video-Türsprechanlage mit zentraler Speisung
Blockschaltbild: Video-Türsprechanlage für das Mehr-
familienhaus mit 3 Hauptbuslinien.
Schaltplan: Video-Türsprechanlage für das Mehrfamili-
enhaus mit 3 Hauptbuslinien mit zentraler
Speisung und Linienverteiler 1 4813.
* Bitte beachten Sie die rote Markierung
** Bitte beachten Sie die Verbindung des Systembus
*** Max. 12 Video-Hausstationen
B0095-2
a3
2x2+2
2x2+2
2x2+2
a2
2x2+22x2+22x2+2
2x2+22x2+22x2+2
2x2+22x2+2
a1 max. 12max. 12max. 12
2
ED
2
ED
2
ED
2
ED
2
ED
2
ED
1 78171 7817 1 7817
1 78171 7817 1 7817
1 4780
1 4753
1 4753
1 4760
RiTTO
8
2
1 75731 4874 1 4874
1 4813
1 6477
1 4874
UV
Hinweis:
Ein Parallelbetrieb von Video-Hausstationen S/W
1 7817 auf einer Klingeltaste ist nicht möglich.
S0104-2
Va Vb Va Vb Va Vb
1 7817
a
b
Va Vb
ED
ED
11
21 a1
b a2NL
432
2
1
134
VbVa
VbVa
VbVaE++VbVa
NL 2 31
1 4760
1 4780
a3
1 7573
ED
a1
1 7817
a
b
Va Vb
ED
ED
ED
1 7817
a
b
VbVa
ED
ED
ED
1 7817
a
b
Va Vb
ED
ED
ED
a2
1 7817
a
b
Va Vb
ED
ED
ED
1 7817
a
b
VbVa
ED
ED
ED
1 7817
NL
a
b
Va Vb
ED
ED
ED
a3
1 7817
1 4874
a
+
b
Va Vb
ED
ED
ED
1 7817
a
b
VbVa
ED
ED
ED
1 2VbVa
1 4813
1 6477
NL
1 4874
+
NL
1 4874
+
1 4753
max. 12
max. 12 max. 12
Va Vb
Va Vb
Va Vb
Va Vb
Va Vb
Va Vb

Related product manuals