EasyManua.ls Logo

Rivacold FSL012Z011 - Page 88

Rivacold FSL012Z011
Print Icon
To Next Page IconTo Next Page
To Next Page IconTo Next Page
To Previous Page IconTo Previous Page
To Previous Page IconTo Previous Page
Loading...
BLOCKSYSTEM FS Pag. 88 Rev. 02 02/07
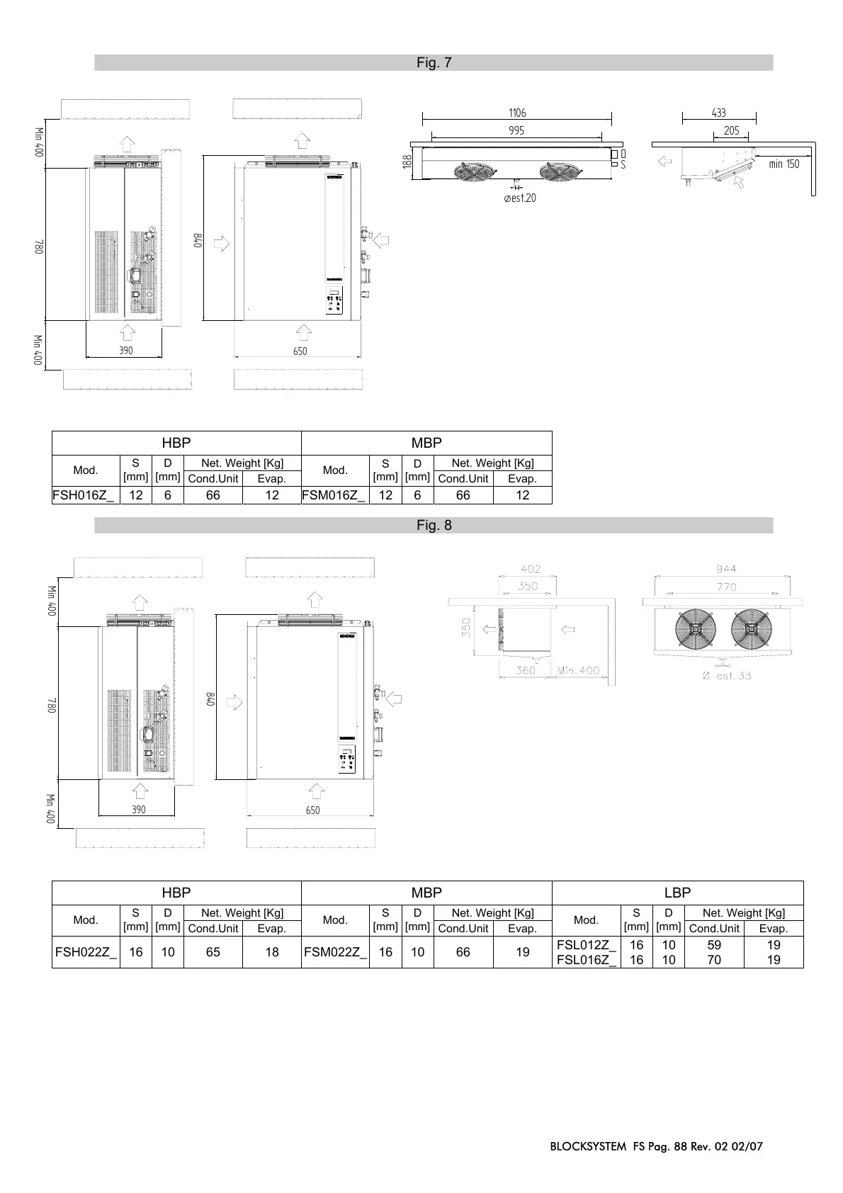
Fig. 7
HBP MBP
Net. Weight [Kg] Net. Weight [Kg]
Mod.
S
[mm]
D
[mm]
Cond.Unit Evap.
Mod.
S
[mm]
D
[mm]
Cond.Unit Evap.
FSH016Z_ 12 6 66 12 FSM016Z_ 12 6 66 12
Fig. 8
HBP MBP LBP
Net. Weight [Kg] Net. Weight [Kg] Net. Weight [Kg]
Mod.
S
[mm]
D
[mm]
Cond.Unit Evap.
Mod.
S
[mm]
D
[mm]
Cond.Unit Evap.
Mod.
S
[mm]
D
[mm]
Cond.Unit Evap.
FSH022Z_ 16 10 65 18 FSM022Z_
16 10 66 19
FSL012Z_
FSL016Z_
16
16
10
10
59
70
19
19
Min 400
780
Min 400
390
650
840
off
on
set
Min 400
780
Min 400
390
650
840
off
on
set
188
1106
433
995
øest.20
205
min 150
D
S

Related product manuals