EasyManua.ls Logo

Robern Uplift Tech - Page 22

Robern Uplift Tech
48 pages
Print Icon
To Next Page IconTo Next Page
To Next Page IconTo Next Page
To Previous Page IconTo Previous Page
To Previous Page IconTo Previous Page
Loading...
22
© 2019 Robern, Inc. 701 N. Wilson Ave. Bristol, PA 19007 U.S.A.
800.877.2376 www.robern.com
Instructions d'installation / Instrucciones de instalación
No. de pièce / Pieza n.° 209-1311-rA rev. 06/13/19
Uplift Tech Cabinet / Uplift Tech Cabinet






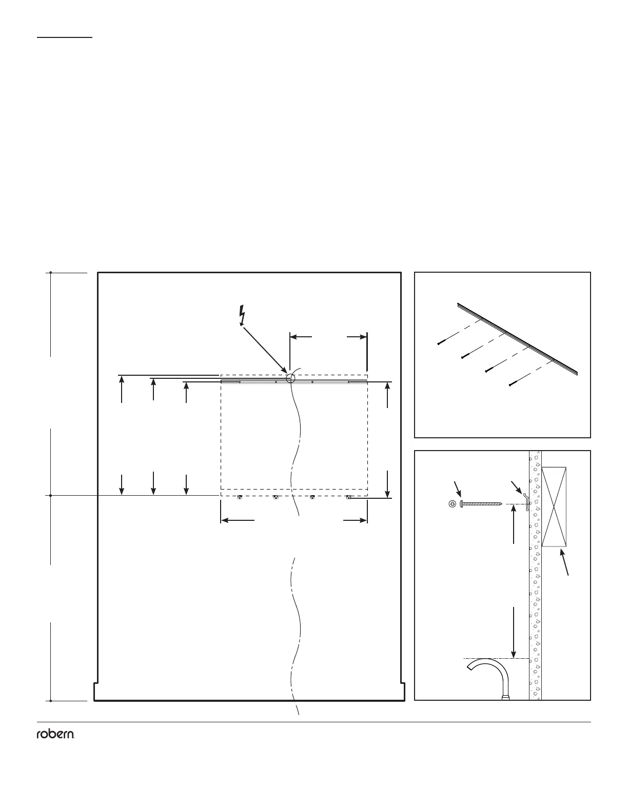
ÉTAPE 1B - MONTAGE EN SURFACE
1
"


Produit
"
"
"
Produit
" 
" 
" 
"
2
3
"
Barre en Z



Related product manuals