EasyManua.ls Logo

Robern Uplift Tech - STEP 1 B - Surface Mounting; Surface Mounting: Z-Bar Attachment

Robern Uplift Tech
48 pages
Print Icon
To Next Page IconTo Next Page
To Next Page IconTo Next Page
To Previous Page IconTo Previous Page
To Previous Page IconTo Previous Page
Loading...
6
© 2019 Robern, Inc. 701 N. Wilson Ave. Bristol, PA 19007 U.S.A.
800.877.2376 www.robern.com
Installation instructions
Part no. 209-1311-rA rev. 06/13/19
Uplift Tech Cabinet



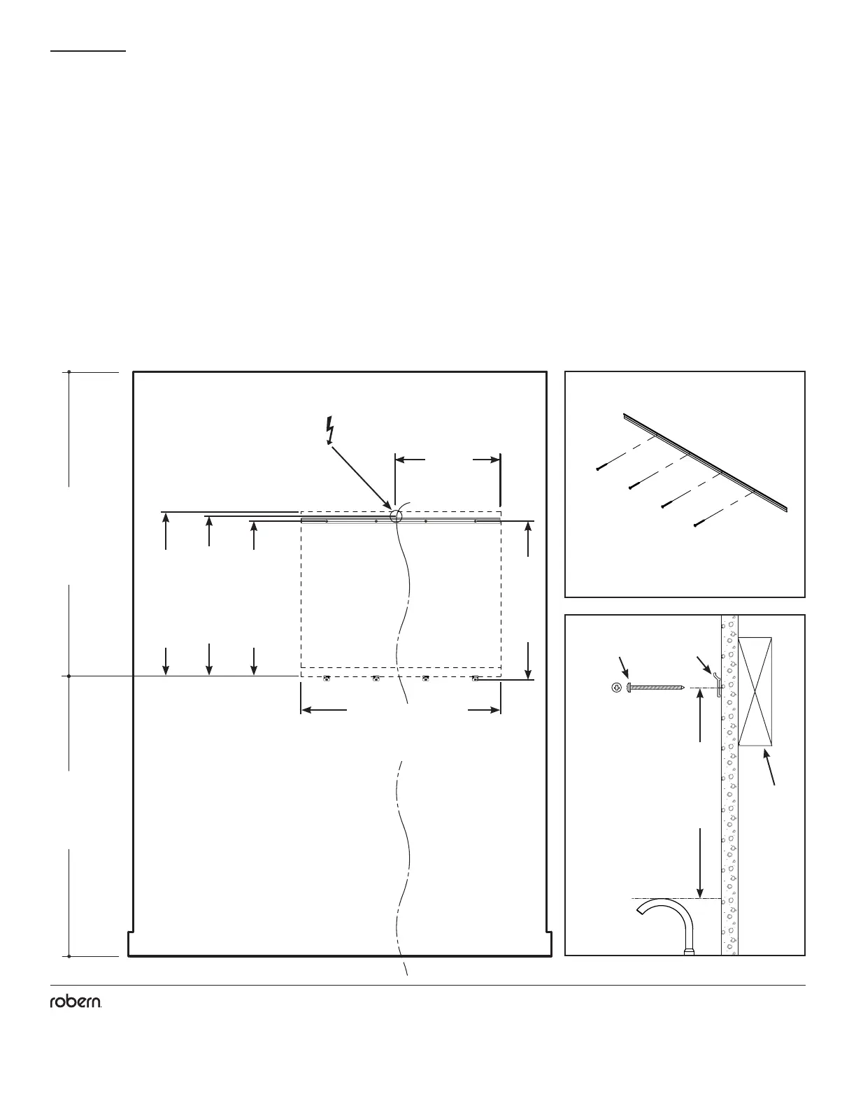
sure Z mounting bar is centered.

STEP 1B - SURFACE MOUNTING
1
"

Field wiring
Product
"
"
"
Product
" 
" 
" 
"
2
3
"
Z Bar



Related product manuals