EasyManua.ls Logo

Rocal INSERT ARc 50V - Page 46

Rocal INSERT ARc 50V
Print Icon
To Next Page IconTo Next Page
To Next Page IconTo Next Page
To Previous Page IconTo Previous Page
To Previous Page IconTo Previous Page
Loading...
45
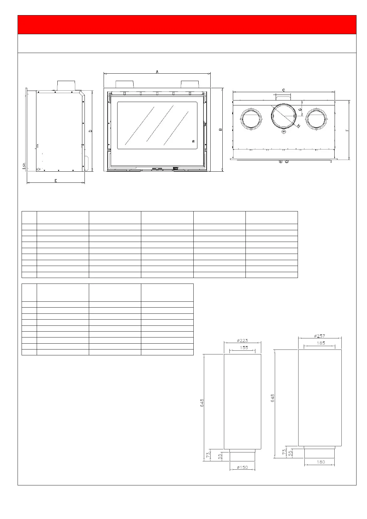
ANEXO/ANNEX/ANNEXE/ANESSO
I
mm ARc 50V
ARc 50V +Plus 150
ARc 65
ARc 65 +Plus 150
ARc 70
ARc 70 +Plus 150
ARc 70A
ARc 70A +Plus 150
ARc 70C
ARc 70C +Plus 150
A
550
670
725
725
725
B
701
500
511
564
511
C
516
635
691
691
532
D
683
482
493
546
493
E
391
39
5
391
391
391
F
401
4
95
401
401
401
G
105
105
105
105
105
H
150
150
150
150
150
I
100
100
100
100
100
mm
ARc 80
ARc 80 +Plus 180
ARc 100R
ARc 100R +Plus
180
ARc 100
ARc 100 +Plus 180
A
819
1019
725
B
586
611
511
C
785
337
-
985
691
D
568
593
493
E
411
443
391
F
421
453
401
G
119
119
105
H
180
180
180
I
100
100
100
I
n
Plus 150
n
n
Plus 180

Related product manuals