EasyManua.ls Logo

Rockwell Automation Allen-Bradley 1747-SN

Rockwell Automation Allen-Bradley 1747-SN
173 pages
To Next Page IconTo Next Page
To Next Page IconTo Next Page
To Previous Page IconTo Previous Page
To Previous Page IconTo Previous Page
Loading...
Publication 1747-UM013B-EN-P - January 2005
Scanner Configuration and Programming 4-25
Word 3 - provides status/feedback of the logical device starting
addresses you configured in word 3 of the G file (complementary
devices). Writing to M1 file word 3 will not alter the contents of the
G file.
Logical Device Image Size Status
Word 9 - provides status/feedback of the logical device image size
you configure in word 2 of the G file (primary/normal devices). A bit
set to 1 shows the logical image size of each logical device. Writing to
word M1 file word 9 will not alter the contents of the G file.
1
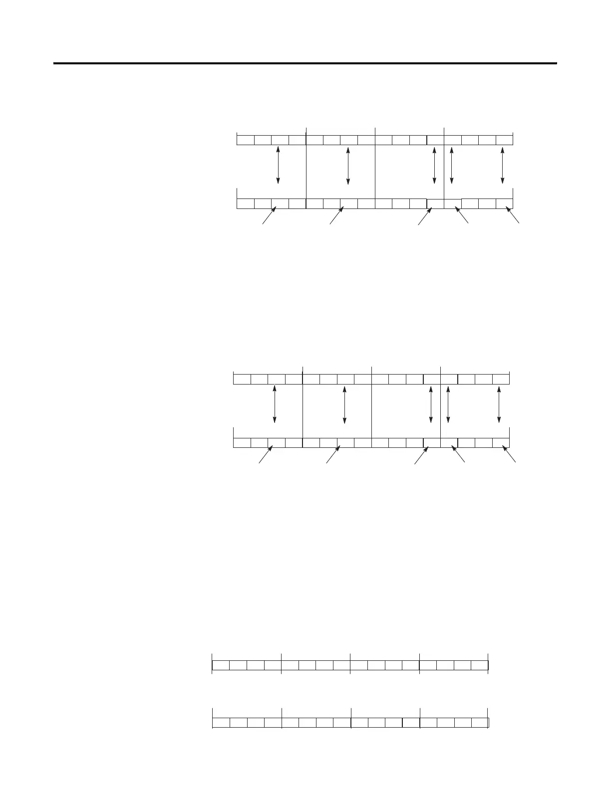
Primary Logical Device Address, Word 8
M1:e.8
M1 (Status) File - W ord 8
1 100100001000100
G File - W ord 1
1
100
1
0000100000
Primary Logical Device Address, Word 1
0123456789101112131415
M1 File
Bit Number (decimal)
RIO Logical Rack 3
Starting Group 2
RIO Logical Rack 2
Starting Group 2
RIO Logical Rack 1
Starting Group 0
RIO Logical Rack 0
Starting Group 0
RIO Logical Rack 0
Starting Group 6
Starting Group
0246
Starting Group
0246
Starting Group
0246
Starting Group
0246
1
Complementary Logical Device Address,
Word 3
M1:e.3
M1 (Status) File - W ord 3
1 100100001000100
G File - W ord 3
1
100
1
0000100000
0123456789101112131415
M1 File
Bit Number (decimal)
RIO Logical Rack 11
Starting Group 2
RIO Logical Rack 10
Starting Group 2
RIO Logical Rack 9
Starting Group 0
RIO Logical Rack 8
Starting Group 0
RIO Logical Rack 8
Starting Group 6
Starting Group
0246
Starting Group
0246
Starting Group
0246
Starting Group
0246
Complementary Logical Device Address,
Word 3
RIO Rack 0
Image Size
0246
RIO Rack 1
Image Size
0246
RIO Rack 2
Image Size
0246
RIO Rack 3
Image Size
0246
0123456789101112131415
M1 File
Primary Logical Device Image Size, Word 9
M1:e.9
G File - W ord 2
Primary Logical Device Image Size, Word 2
M1 (Status) File - W ord 9
Bit Number (decimal)
1 100111101100111
1 100111101100111
Artisan Technology Group - Quality Instrumentation ... Guaranteed | (888) 88-SOURCE | www.artisantg.com

Table of Contents