EasyManua.ls Logo

Rockwell Automation Allen-Bradley Guardmaster 442G-MABE1

Rockwell Automation Allen-Bradley Guardmaster 442G-MABE1
8 pages
To Next Page IconTo Next Page
To Next Page IconTo Next Page
To Previous Page IconTo Previous Page
To Previous Page IconTo Previous Page
Loading...
6 Rockwell Automation Publication 442G-IN004C-EN-P - January 2020
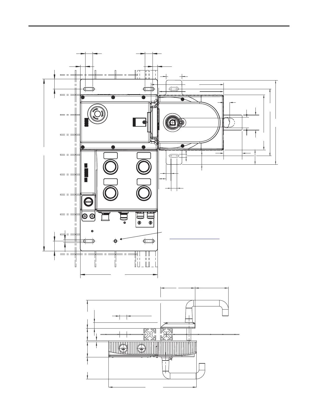
Multifunctional Access Box with CIP Safety over EtherNet/IP
Approximate Dimensions [mm (in.)]
10
(0.39)
135
(5.31)
170
(6.69)
30
(1.18)
17.5
(0.69)
15
(0.59)
10
(0.39)
32 (1.26)
12
(0.47)
IN 24V DC
OUT 24V DC
LINK 1
LINK 2
Act
2
Lnk
Act
Net
Mod
Pwr
1
1
Lnk
2
S6S4
S9
S0
20
(0.79)
15
(0.59)
10
(0.39)
15
(0.59)
345
(13.58)
20
(0.79)
6.5
(0.25)
155 (6.10)
6.5 (0.25)
111
(4.37)
30
(1.18)
21
(0.83)
12
(0.47)
37 (1.45)
145 (5.71)
130 (5.12)
S7
104
(4.09)
113.5
(4.47)
83
(3.27)
62.5
(2.46)
289.3 (11.39)
19.2 (0.75)
40
(1.57)
51
(2.01)
M20 x 1.5 (0.06) (4x)
4
(0.16)
Threaded M6 for functional earth connection.
See Power Supply Requirements
on page 2.

Other manuals for Rockwell Automation Allen-Bradley Guardmaster 442G-MABE1

Related product manuals