EasyManua.ls Logo

Rockwell Automation Allen-Bradley PanelView 550 - Snubber Capacitance (SCR Device)

Rockwell Automation Allen-Bradley PanelView 550
434 pages
Print Icon
To Next Page IconTo Next Page
To Next Page IconTo Next Page
To Previous Page IconTo Previous Page
To Previous Page IconTo Previous Page
Loading...
Rockwell Automation Publication 7000L-UM301F-EN-P - March 2020 205
Commissioning Chapter 4
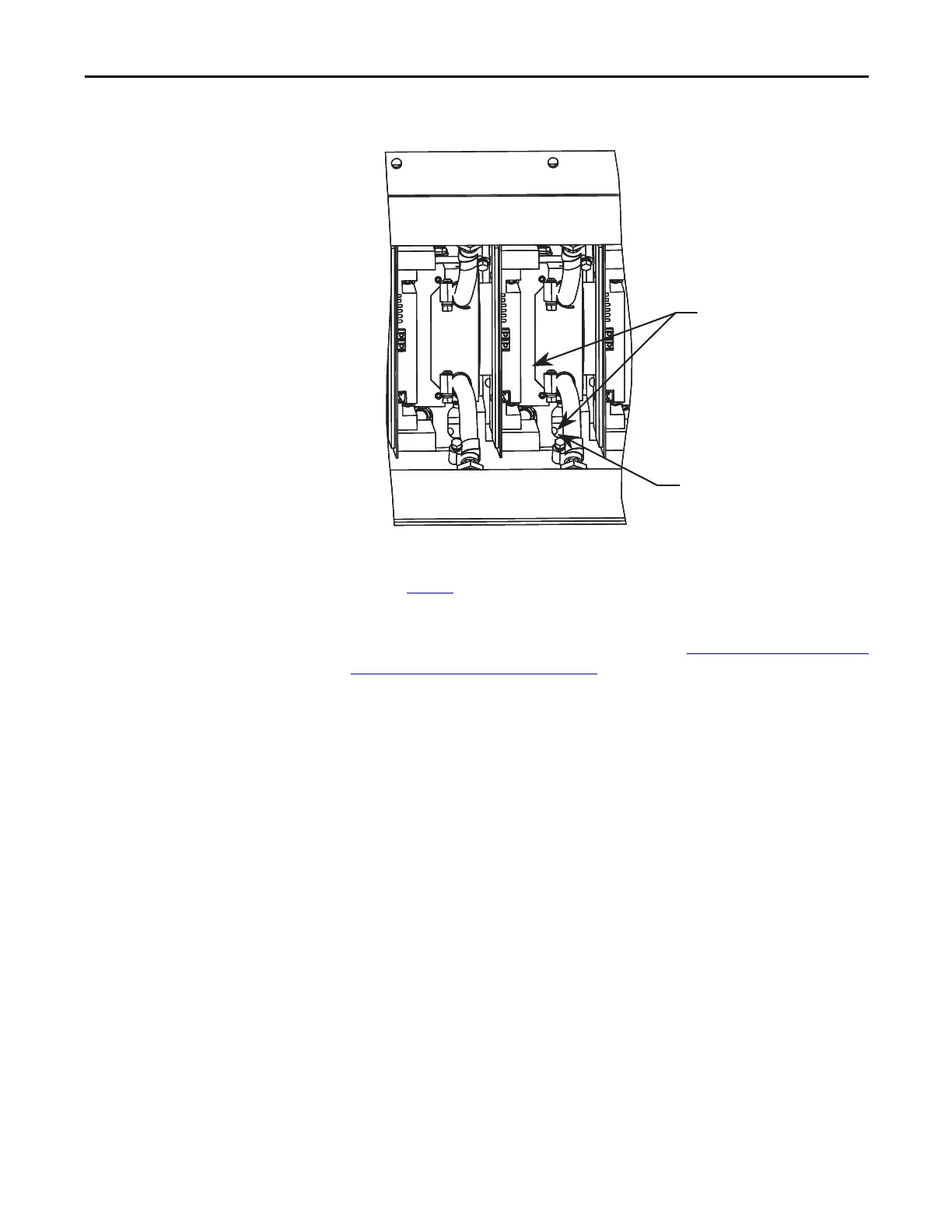
Figure 189 - Snubber Resistance Test
Refer to Ta ble 7 to determine the appropriate snubber resistance value for the
current rating of the SCR used.
If the resistor is found to be out of tolerance, refer to
Component Definition and
Maintenance on page 265 (Chapter 5) for detailed instructions on how to
replace the snubber resistor assembly.
Snubber Capacitance (SCR Device)
Turn the multimeter from the resistance to capacitance measurement mode.
Proceed to verify the snubber capacitor by measuring from the test point and the
white wire at the 2-pole device snubber plug (labeled snubber).
Measure resistance
between chill block
and test point.
Snubber Test Point
Measure resistance
between chill block
and test point.
Snubber Test Point

Table of Contents

Related product manuals