EasyManua.ls Logo

Rockwell Automation Allen-Bradley PanelView 550 - Page 81

Rockwell Automation Allen-Bradley PanelView 550
434 pages
Print Icon
To Next Page IconTo Next Page
To Next Page IconTo Next Page
To Previous Page IconTo Previous Page
To Previous Page IconTo Previous Page
Loading...
Rockwell Automation Publication 7000L-UM301F-EN-P - March 2020 81
Drive Installation Chapter 2
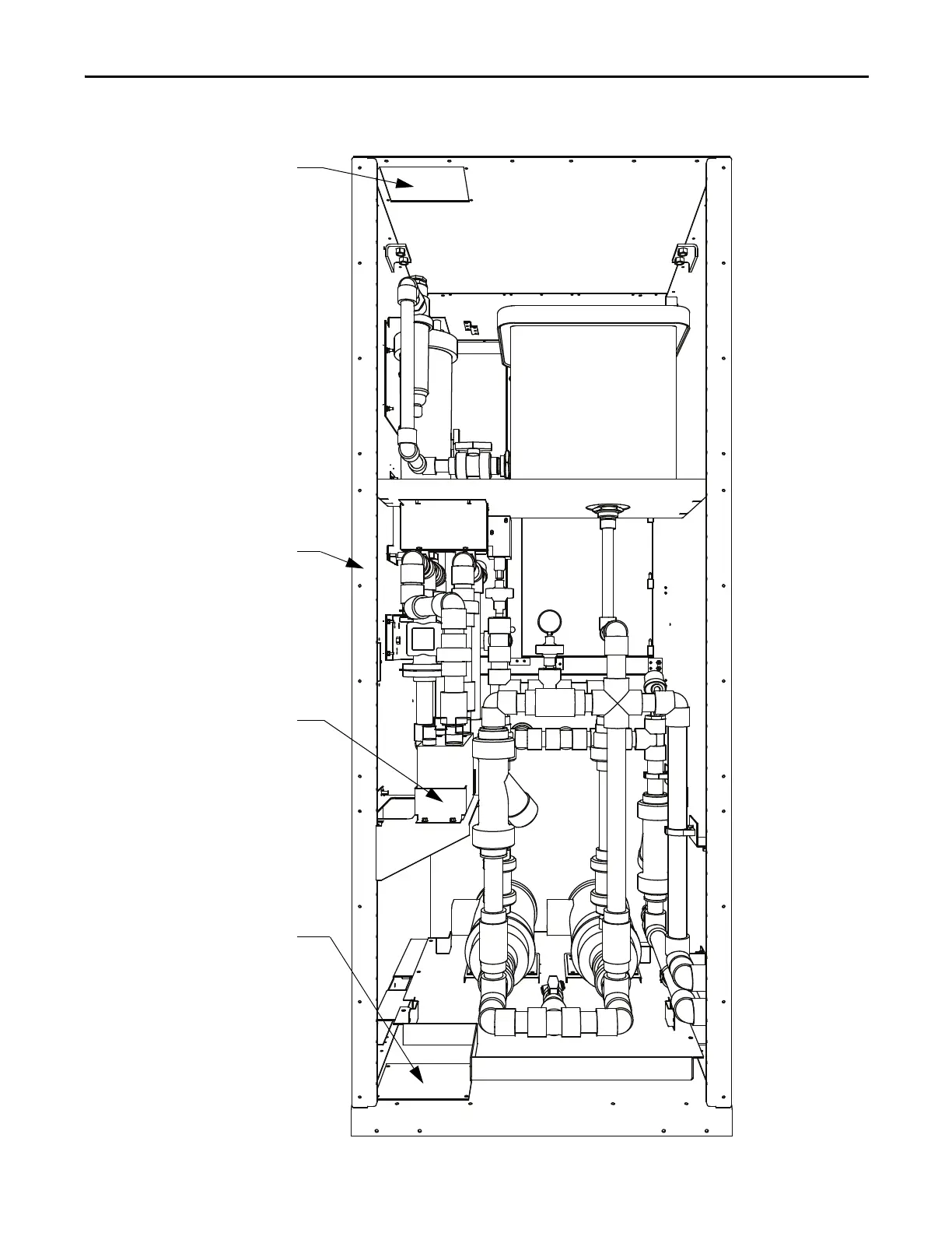
Figure 65 - Connection to Liquid-to-Liquid Heat Exchanger (rear of pumping cabinet shown with
back plates removed)
Access for connections
through top of cabinet
Access for connections to
heat exchanger through
right side of cabinet
Liquid-to-Liquid Heat Exchanger
Access for connections to heat
exchanger through bottom of cabinet

Table of Contents

Related product manuals