EasyManua.ls Logo

Rockwell Automation Allen-Bradley PowerFlex 40 22B-D4P0N104 - Page 124

Rockwell Automation Allen-Bradley PowerFlex 40 22B-D4P0N104
160 pages
Print Icon
To Next Page IconTo Next Page
To Next Page IconTo Next Page
To Previous Page IconTo Previous Page
To Previous Page IconTo Previous Page
Loading...
B-18 Accessories and Dimensions
PowerFlex 40 Adjustable Frequency AC Drive FRN 1.xx - 7.xx User Manual
Publication 22B-UM001I-EN-E
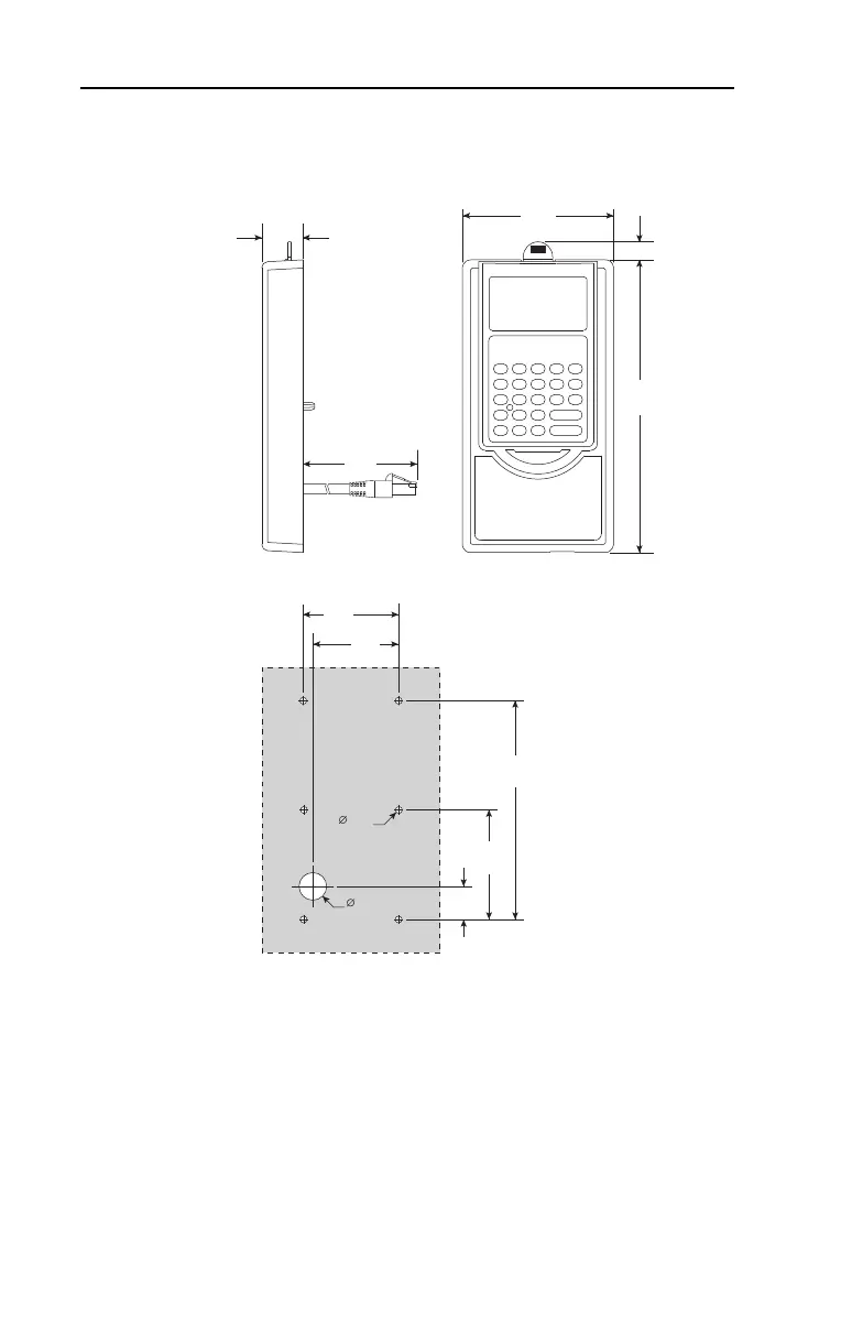
Figure B.14 NEMA Type 1 Bezel – Dimensions are in millimeters and (inches)
Catalog Number: 22-HIM-B1
93
(3.66)
25.2
(0.99)
2m
180
(7.09)
11.1
(0.44)
19.1
(0.75)
4.8
(0.19)
154
(6.06)
77
(3.03)
23.5
(0.93)
67
(2.64)
60
(2.36)
22B-UM001.book Page 18 Tuesday, May 30, 2017 5:22 PM

Table of Contents

Related product manuals