EasyManua.ls Logo

Rockwell Automation Allen-Bradley PowerFlex 40 22B-D6P0N104 - Page 114

Rockwell Automation Allen-Bradley PowerFlex 40 22B-D6P0N104
160 pages
Print Icon
To Next Page IconTo Next Page
To Next Page IconTo Next Page
To Previous Page IconTo Previous Page
To Previous Page IconTo Previous Page
Loading...
B-8 Accessories and Dimensions
PowerFlex 40 Adjustable Frequency AC Drive FRN 1.xx - 7.xx User Manual
Publication 22B-UM001I-EN-E
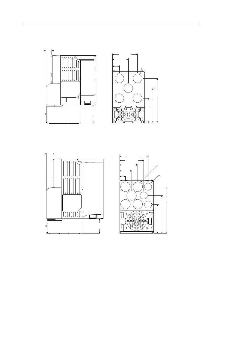
Figure B.3 IP30, NEMA/UL Type 1 Option Kit with Communication Option
Dimensions are in millimeters and (inches)
64.0
(2.52)
25.0
(0.98)
22.2
(0.87)
76.3
(3.00)
105.3
(4.15)
134.3
(5.29)
50.0 (1.97)
77.5 (3.05)
22.5 (0.89)
25.0
(0.98)
45.7 (1.80)
109.8
(4.32)
144.8
(5.70)
179.8
(7.08)
69.2 (2.72)
92.2 (3.63)
108.7 (4.28)
22.2 (0.87)
22.2
(0.87)
28.5
(1.12)
60.0
(2.36)
Frame B - 22-JBCB
Frame C - 22-JBCC
22B-UM001.book Page 8 Tuesday, May 30, 2017 5:22 PM

Table of Contents

Related product manuals