EasyManua.ls Logo

Rockwell Automation Allen-Bradley PowerFlex 40 22B-D6P0N104

Rockwell Automation Allen-Bradley PowerFlex 40 22B-D6P0N104
160 pages
To Next Page IconTo Next Page
To Next Page IconTo Next Page
To Previous Page IconTo Previous Page
To Previous Page IconTo Previous Page
Loading...
Accessories and Dimensions B-17
PowerFlex 40 Adjustable Frequency AC Drive FRN 1.xx - 7.xx User Manual
Publication 22B-UM001I-EN-E
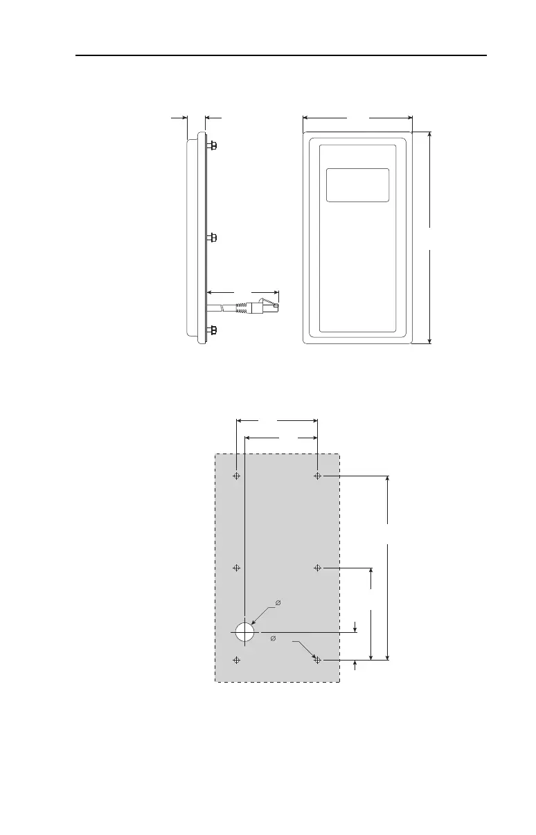
Figure B.13 Remote (Panel Mount) Small HIM – Dimensions are in millimeters and
(inches) Catalog Number: 22-HIM-C2S
93
(3.66)
25
(0.98)
2m
180
(7.09)
154
(6.06)
77
(3.03)
23.5
(0.93)
67
(2.64)
60
(2.36)
19.1
(0.75)
4.8
(0.19)
22B-UM001.book Page 17 Tuesday, May 30, 2017 5:22 PM

Table of Contents

Related product manuals