EasyManua.ls Logo

Rotex GSU 25 - Page 44

Default Icon
64 pages
Print Icon
To Next Page IconTo Next Page
To Next Page IconTo Next Page
To Previous Page IconTo Previous Page
To Previous Page IconTo Previous Page
Loading...
[ 44 ]
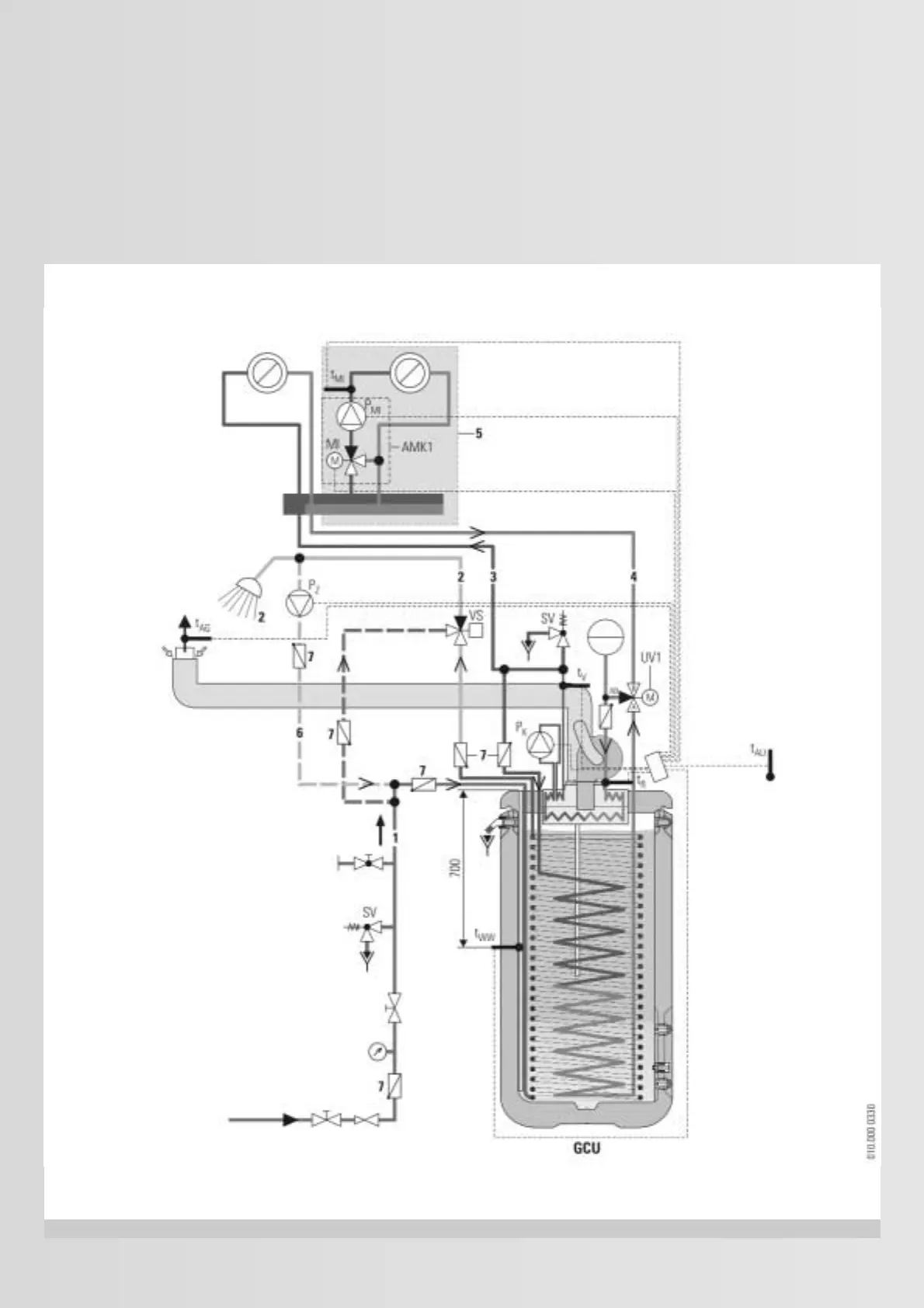
Fig. 5.3.2: Standard connection diagram ROTEX GasCompactUnit
1)
1) The connection diagram shown makes no claim as to its completeness and is no replacement for careful system engineering.

Table of Contents

Related product manuals