EasyManua.ls Logo

Rotex GSU 25 - 5.3 Hydraulic System Connection

Default Icon
64 pages
Print Icon
To Next Page IconTo Next Page
To Next Page IconTo Next Page
To Previous Page IconTo Previous Page
To Previous Page IconTo Previous Page
Loading...
[ 43 ]
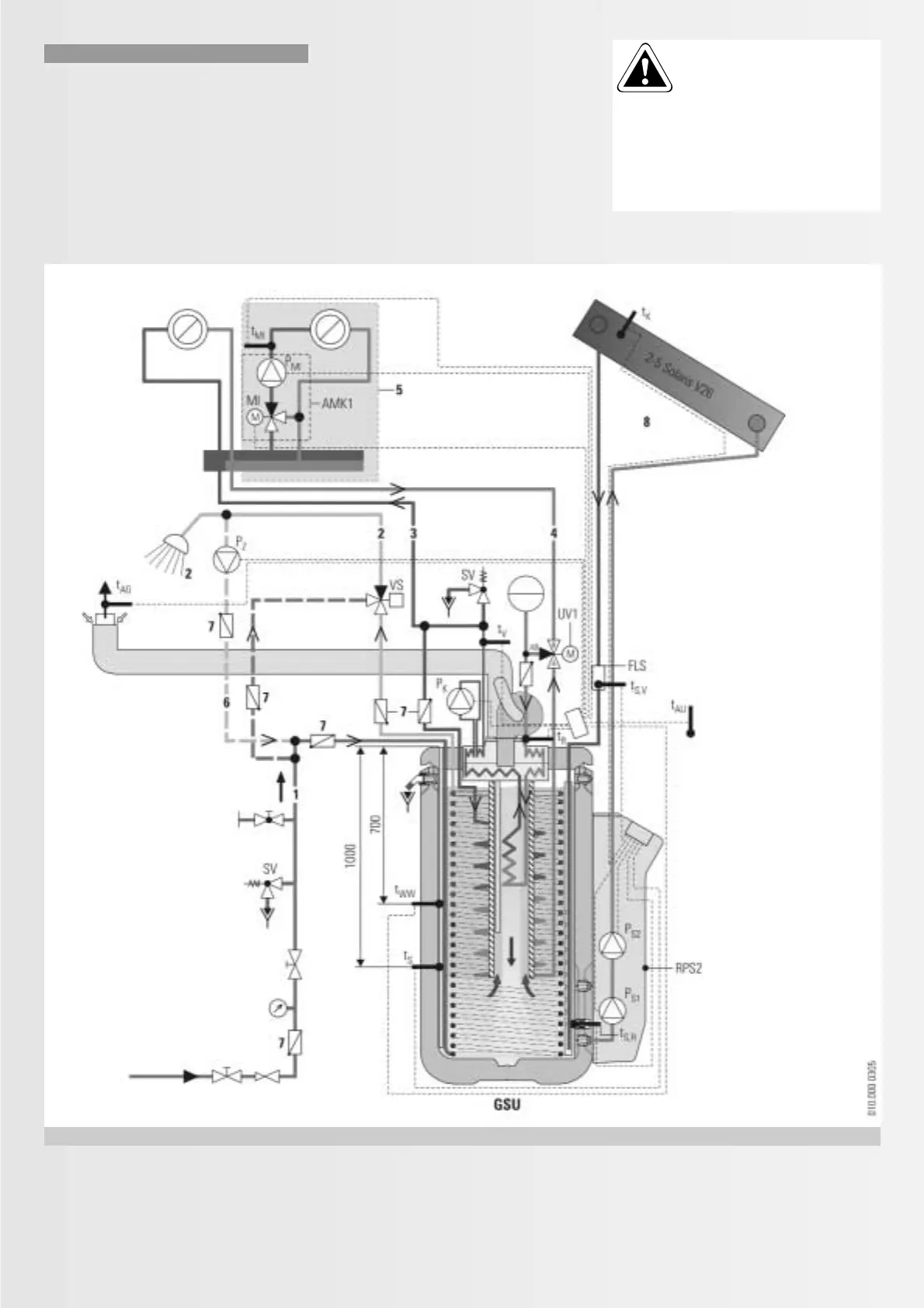
Fig. 5.3.1: Standard connection diagram ROTEX GasSolarUnit
1)
5.3 Hydraulic system connection
The descriptions in the following hydraulic
diagrams are explained in Tab. 5.3.1 on
page 48.
1) The connection diagram shown makes no claim as to its completeness and is no replacement for careful system engineering.
Please note: Risk of scalding
During the operation of the Gas-
SolarUnit, particularly when
utilising solar energy, cylinder temperatures in
excess of 60 °C can occur. Therefore, install an
anti-scalding device on site (DHW mixing
facility). The same applies to the Gas-
CompactUnit, if cylinder temperatures above
60 °C can occur.

Table of Contents

Related product manuals