EasyManua.ls Logo

Rotex RRLQ006CAV3 - Formula to Calculate the Expansion Vessel Pre-Pressure; To Check the Water Volume and Flow Rate

Rotex RRLQ006CAV3
104 pages
Print Icon
To Next Page IconTo Next Page
To Next Page IconTo Next Page
To Previous Page IconTo Previous Page
To Previous Page IconTo Previous Page
Loading...
6 Preparation
Installer reference guide
25
RRLQ004~008CA + RHBH/X04+08CB
ROTEX HPSU low temperature Bi‑bloc
4P384979-1C – 2017.04
Minimum required flow rate during defrost/backup heater
operation
11+16 models 15l/min
Field supply components Water. Only use materials that are
compatible with water used in the system and with the materials
used in the indoor unit.
Field supply components Water pressure and temperature.
Check that all components in the field piping can withstand the
water pressure and water temperature.
Water pressure. The maximum water pressure is 4 bar. Provide
adequate safeguards in the water circuit to ensure that the
maximum pressure is NOT exceeded.
Water temperature. All installed piping and piping accessories
(valve, connections,…) MUST withstand the following
temperatures:
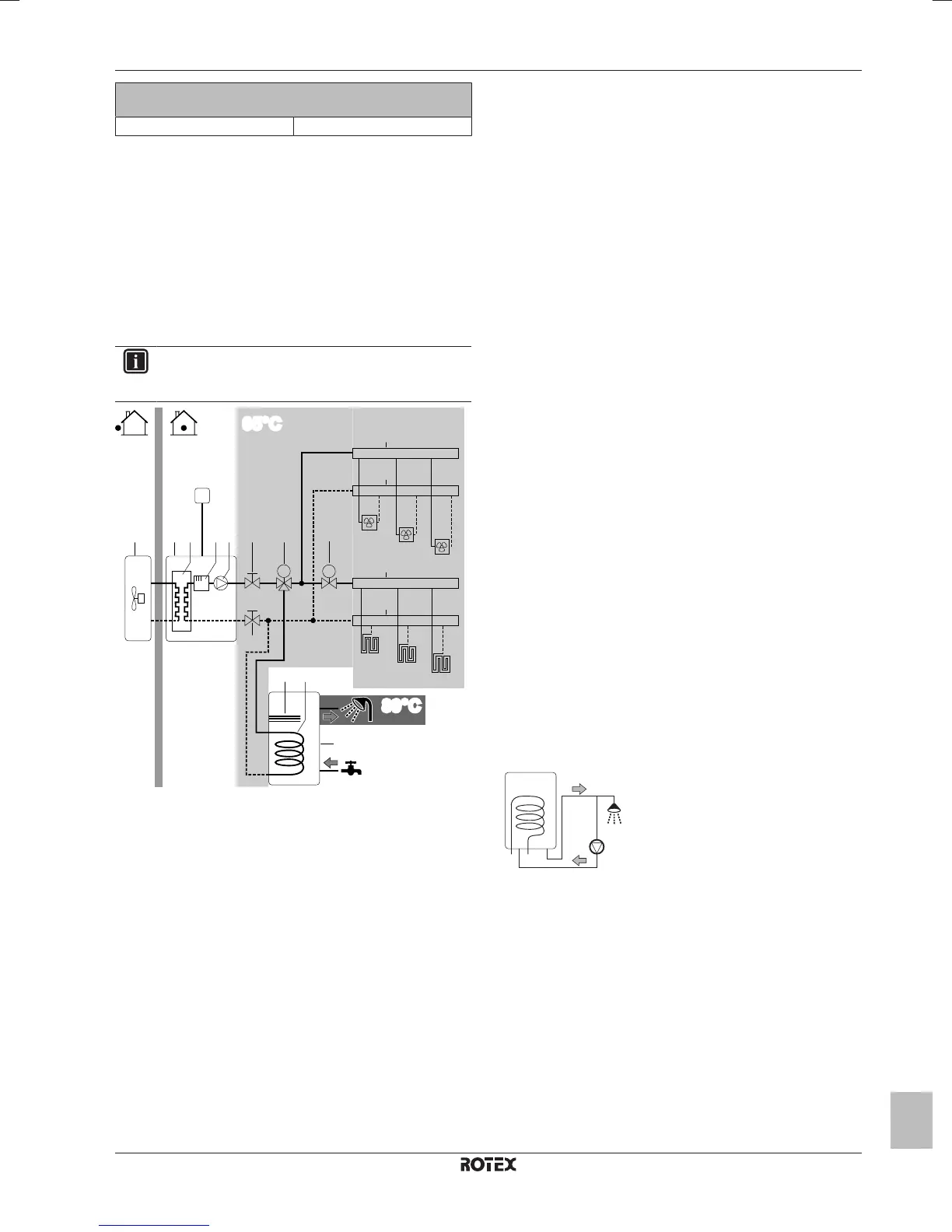
INFORMATION
The following illustration is an example and might NOT
match your system layout.
M
FCU1
FCU2
FCU3
i
M
FHL1
FHL2
FHL3
j
l k
fd ecba
f
g
h
i
i
i
T
65°C
89°C
a Outdoor unit
b Indoor unit
c Heat exchanger
d Backup heater
e Pump
f Shut-off valve
g Motorised 3-way valve (supplied with the domestic hot
water tank)
h Motorised 2-way valve (field supply)
i Collector
j Domestic hot water tank
k Heat exchanger coil
l Booster heater
FCU1...3 Fan coil unit (optional) (field supply)
FHL1...3 Floor heating loop (field supply)
T Room thermostat (optional) (field supply)
Drainage – Low points. Provide drain taps at all low points of the
system in order to allow complete drainage of the water circuit.
Drainage Pressure relief valve. Provide a proper drain for the
pressure relief valve to avoid water coming into contact with
electrical parts.
Air vents. Provide air vents at all high points of the system, which
must also be easily accessible for servicing. An automatic air
purge is provided in the indoor unit. Check that the air purge is
NOT tightened too much, so that automatic release of air in the
water circuit is possible.
Zn-coated parts. Never use Zn-coated parts in the water circuit.
Because the unit's internal water circuit uses copper piping,
excessive corrosion may occur.
Non-brass metallic piping. When using non-brass metallic
piping, insulate the brass and non-brass properly so that they do
NOT make contact with each other. This to prevent galvanic
corrosion.
Valve Separating circuits. When using a 3-way valve in the
water circuit make sure that the domestic hot water circuit and the
floor heating circuit is fully separated.
Valve – Change‑over time. When using a 2-way valve or a 3-way
valve in the water circuit, the maximum change-over time of the
valve must be 60seconds.
Filter. It is strongly recommended to install an additional filter on
the heating water circuit. Especially to remove metallic particles
from foul heating piping, it is recommended to use a magnetic or
cyclone filter, which can remove small particles. Small particles
may damage the unit and will NOT be removed by the standard
filter of the heat pump system.
Domestic hot water tank Capacity. To avoid stagnation of
water, it is important that the storage capacity of the domestic hot
water tank meets the daily consumption of domestic hot water.
Domestic hot water tank After installation. Immediately after
installation, the domestic hot water tank must be flushed with fresh
water. This procedure must be repeated at least once a day the
first 5 consecutive days after installation.
Domestic hot water tank Standstills. In cases where during
longer periods of time there is no consumption of hot water, the
equipment MUST be flushed with fresh water before usage.
Domestic hot water tank Disinfection. For the disinfection
function of the domestic hot water tank, see "8.3.2 Domestic hot
water control: advanced"on page60.
Thermostatic mixing valves. In accordance with the applicable
legislation, it may be necessary to install thermostatic mixing
valves.
Hygienic measures. The installation must be in compliance with
the applicable legislation and may require additional hygienic
installation measures.
Recirculation pump. In accordance with the applicable
legislation, it may be required to connect a recirculation pump in
between the hot water end point and the recirculation connection
of the domestic hot water tank.
c
d
a b
a Recirculation connection
b Hot water connection
c Shower
d Recirculation pump
6.4.2 Formula to calculate the expansion vessel
pre-pressure
The pre-pressure (Pg) of the vessel depends on the installation
height difference (H):
Pg=0.3+(H/10) (bar)
6.4.3 To check the water volume and flow rate
The indoor unit has an expansion vessel of 10litre with a factory-set
pre-pressure of 1bar.
To make sure that the unit operates properly:
You must check the minimum and maximum water volume.

Table of Contents

Other manuals for Rotex RRLQ006CAV3

Related product manuals