EasyManua.ls Logo

Rotex RRLQ008CAV3 - Piping Diagram: Indoor Unit

Rotex RRLQ008CAV3
104 pages
Print Icon
To Next Page IconTo Next Page
To Next Page IconTo Next Page
To Previous Page IconTo Previous Page
To Previous Page IconTo Previous Page
Loading...
14 Technical data
Installer reference guide
85
RRLQ004~008CA + RHBH/X04+08CB
ROTEX HPSU low temperature Bi‑bloc
4P384979-1C – 2017.04
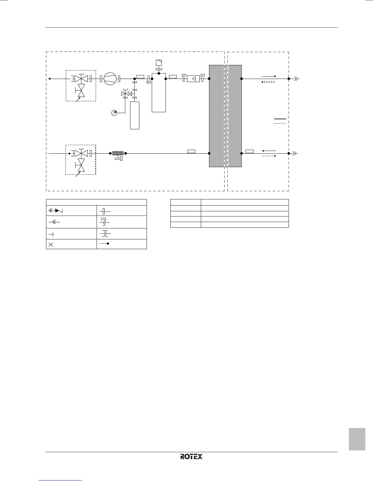
14.2 Piping diagram: Indoor unit
R2T
R1T
R3T
R4T
3D088485
R4T
R3T
R2T
R1T
Water
inlet
Field installed
Field installed
Shut-off valve
with drain/fill valve
Refrigerant side
Water
outlet
Pump
Manometer
Water side
Shut-off valve
with drain/fill valve
Filter
Plate heat
exchanger
Refrigerant inlet
Refrigerant outlet
Evaporator
Condenser
Refrigerant inlet
Refrigerant outlet
Backup heater
Flow sensor
Air purge
Expansion vessel
Check valve
Flare connection
Screw connection
Flange connection
Brazed connection
Quick coupling
LEGEND
Pinched pipe
Spinned pipe
Thermistor Description
Inlet water thermistor
Refrigerant liquid side thermistor
Outlet water backup heater thermistor
Outlet water heat exchanger thermistor
Safety
valve

Table of Contents

Other manuals for Rotex RRLQ008CAV3

Related product manuals