EasyManua.ls Logo

Rotfuchs DH55 - Technische Daten; Error Messages

Rotfuchs DH55
Print Icon
To Next Page IconTo Next Page
To Next Page IconTo Next Page
To Previous Page IconTo Previous Page
To Previous Page IconTo Previous Page
Loading...
6
DEUTSCH
9. TECHNISCHE DATEN
Bezeichnung: Bautrockner
Model: DH55
Min. / Max. Umgebungstemperatur: 5°C - 35°C
Max. Enfeuchtungsleistung: ca. 55 l pro Tag
Spannung: AC220-240 V ~ 50 Hz
Leistung: 1150 W
Luftumwälzung: 350 m³/h
Gefrierdruck: 2,5 MPa
Dampfdruck: 1,0 Mpa
Auffangbehälter: 7,0 l
Kühlmittel R407C/410g
Sicherung T3.15A
10. ENTSORGUNG /UMWELTSCHUTZ
Entsorgen Sie das Gerät nach Ende seines techn. Lebenszyklus, die Zubehörteile und die Verpackung
umweltfreundlich. Die Verpackung ist recyclebar. Führen Sie die Verpackung der Wertstoffsamm-
lung zu. Entsorgung des Produktes auf umweltfreundliche Weise. Das Produkt gehört nicht in den
Haushaltsmüll.
Umweltschutz - Beseitigung der alten elektrischen Geräte. Die europäische Richtlinie
2002/96/EC über Elektro-und Elektronik-Altgeräte (WEEE) besagt, dass gebrauchte
Haushaltsgerät nicht zusammen mit unsortiertem Gemeindeabfall entsorgt werden
dürfen. Diese gebrauchten Geräte müssen vom regulären Haushaltsmüll getrennt ge-
sammelt werden, um den Anteil zurückgewonnener Geräte zu erhöhen und deren Ma-
terialien zu recyceln mit dem Ziel, die Auswirkungen auf die menschliche Gesundheit
und auf die Natur zu verringern. Das Zeichen der durchgestrichenen Mülltonne wird
auf alle Geräte aufgebracht, um an die Verp ichtung zur getrennten Sammlung zu
erinnern. Die Verbraucher müssen die lokalen Verantwortlichen oder ihren Verkäufer
ansprechen, um sich über die Art und Weise zu erkundigen, wie ihr Gerät entsorgt
werden muss.
15
ENGLISH
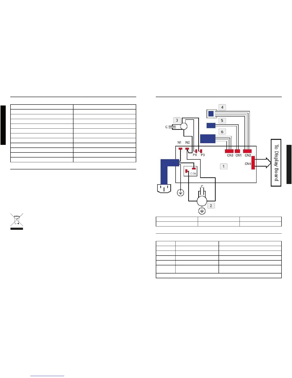
11. CIRCUIT DIAGRAMM
1. Main Board 2. Compressor 3. Fan motor
4. Humidity sensor 5. Temperature sensor 6. Photoelectric switch
12. ERROR MESSAGES
Error* Reason Solution
E1 Coil Sensor-Error Exchange the coil sensor.
E2 Moisture Sensor-Error Exchange the moisture sensor.
E3 Temperature Sensor-Error Exchange the temperature sensor.
E4 Hot and Cold System-Error Have the dryer checked /repaired by a specialist.
E5 Room Temperature too high Lower the room temperature and dryer will restart
automatically.
*If an error occurs, display will show the respective code.