EasyManua.ls Logo

Saivod TMS808M - Overheating Protections; Heat Preservation; Operating Guides; Daily and Common Maintenances

Saivod TMS808M
Print Icon
To Next Page IconTo Next Page
To Next Page IconTo Next Page
To Previous Page IconTo Previous Page
To Previous Page IconTo Previous Page
Loading...
GB
35

to damages.
 Overheating Protections: Under the condition of putting through the power, but the heating pipe
won’t heat from the beginning from the end. At this time, it may appear the over heat protections
(that is to make functions by the double-positional temperature-limiting protection switch).
 Heat preservation: When the water heat to the set temperature, the water heater cut off and turn
to heat preservation mode. When the temperature drop to certain temperature, the water heater
automatic turn on and start heating, until the temperature reach the set temperature. So the cycle
to repeat.
OPERATING GUIDES
Temperature setting: According to your required temperature, rotate the temperature-adjusting knob by
the clockwise direction. You can select to use the heating temperatures without grades in the tempera-

or from low to high.
DAILY AND COMMON MAINTENANCES
 Frequently checking the connection of power source’s plug and the outlet is in good condition. Re-
liable, whether heating. The plug’s outlet is well connected the ground or not.
 When it isn’t in the operation for a long period of time, typically in the low temperature zones and

each time, you should make the water in the tank pour out.
 -
ing parts once each year. Remove the water dirt’s deposits accumulated on the electrical heating
parts and the tank’s base.
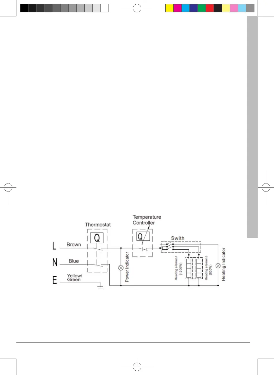
ELECTRICTY DIAGRAM
water heater.indd 352018/12/12 11:28:11

Related product manuals