EasyManua.ls Logo

Samoa PM35 - ATEX Equipment Requirements; ATEX Safety Information; Understanding ATEX Marking; ATEX Zone Classification

Samoa PM35
36 pages
Print Icon
To Next Page IconTo Next Page
To Next Page IconTo Next Page
To Previous Page IconTo Previous Page
To Previous Page IconTo Previous Page
Loading...
2
853 823 R. 03/22
SAMOA Industrial, S.A. · Pol. Ind. Porceyo, I-14 · Camino del Fontán, 831 · 33392 - Gijón - Spain · Tel.: +34 985 381 488 · www.samoaindustrial.com
EN
2022_03_16-11:30
K
DESCRIPTION
Compressed air operated piston-type reciprocating pump. This high flow capacity pump is compatible with mineral and synthetic grease
and suitable for large installations with long lengths of piping supplying several outlets simultaneously. This pump is mounted directly on
20 kg, 50 kg and 185 kg drums.
WARNINGS
WARNING: Read all instruction manuals, tags, and labels
before operating the equipment. This equipment is for
professional use only.
!
The use of non compatible fluids may cause damage in the pump
and serious personal injury. This equipment is not intended for use
with fluids that fall within the Group 1 fluid as defined that are
explosive, extremely flammable, highly flammable, flammable, very
toxic, toxic, oxidizing or where the vapor pressure if greater than 0,5
bar (7 psi) above the pressure atmospheric at the maximum
allowable temperature.
The pump generates high or very high pressures. Do not exceed the
maximum air inlet pressure of 10 bar (145 psi).
A direct hit against the human body may result in an injury.
This unit may have stored pressure, release all pressure and disconnect
from any fluid systems before servicing. To ensure safe operation of this
unit, all service work should be by qualified personnel only.
When not in use, be sure to shut off the air supply to avoid accidents.
Do not alter or modify this equipment. Use only Samoa Industrial,
S.A. genuine components. Any unauthorized tampering with this
equipment, improper use, poor maintenance or removal of
identification labels may invalidate the guarantee.
All fittings in the system connected to the outlet of the pump should
be suitable for the maximum possible pressure generated by the
pump/air motor. If the systems cannot be designed to take the
maximum pressure produced by the pump, safety valves or diverter
valves should be fitted.
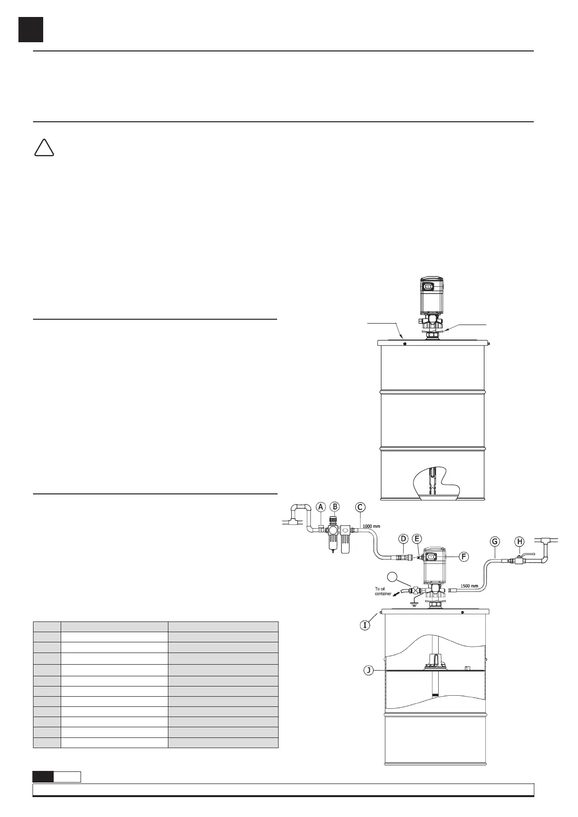
Fig. 2
418 006
418 004
418 002
410 001
It is recommended to install this pump on a drum using the bundled
bung adapter (410 001) with a suitable drum cover (418 006 for 185 kg
drum, 418 004 for 50 kg drum and 418002 for 20 kg drum). Fasten
the cover onto the drum and screw the nut of the bung adaptor
securely into the 2" bung opening of the cover. Insert the pump
through the nut and adjust it with the star nut to the desired height
(see figure 2).
It is also possible mounting the pump directly fastened on a flat
surface, using the 4 threaded holes (M8) disposed in a 90 mm
pattern in the fluid outlet body.
INSTALLATION
Figure 3 is a typical installation shown with all the recommended
accessories for the pump to operate correctly.
NOTE: The compressed air supply must be set between 2 and 10 bar
(29 and 145 psi), being 6 bar (90 psi) the recommended pressure. An
air closing valve must be installed, in order to be able to close the
compressed air line at the end of the day (If the air inlet not is closed
and there is a leakage in some point of the grease outlet circuit, the
pump will start automatically, emptying the container).
TYPICAL INSTALLATION
Fig. 3
Pos Description Part No.
A Air shut off valve 950319+239004
B Filter regulator 241001
C Air hose 247710
D Quick coupling 251438
E Connection nipple 255338
F Pump (185 kg drum) 530610
G Grease hose 945676+841700+945557
H Grease shut off valve 950304
I Cover 418006
J Follower plate 417004
K Pressure Relief Valve

Other manuals for Samoa PM35

Related product manuals