EasyManua.ls Logo

Samoa PUMPMASTER 2 - Page 22

Samoa PUMPMASTER 2
32 pages
Print Icon
To Next Page IconTo Next Page
To Next Page IconTo Next Page
To Previous Page IconTo Previous Page
To Previous Page IconTo Previous Page
Loading...
22
835 807 R. 03/18
SAMOA Industrial, S.A. · Pol. Ind. Porceyo, I-14 · Camino del Fontán, 831 · 33392 - Gijón - Spain · Tel.: +34 985 381 488 · www.samoaindustrial.com
2018_03_15-11:00
PT
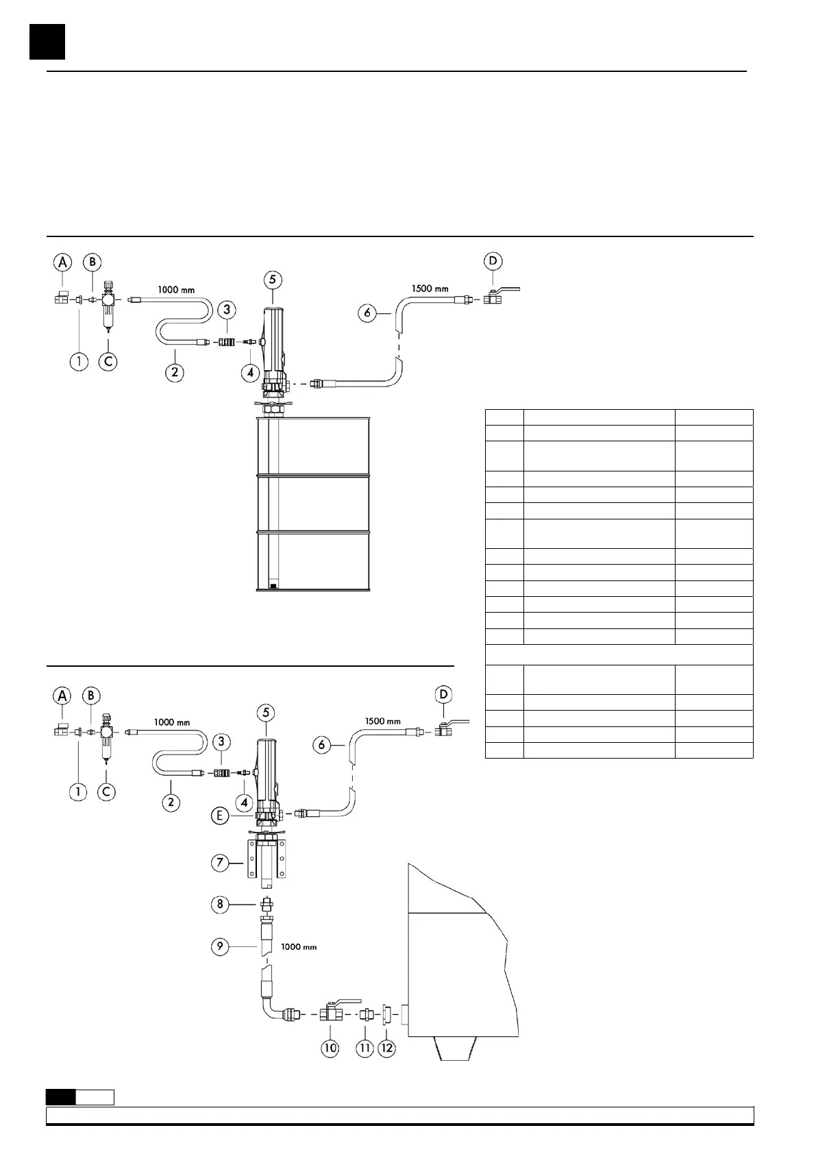
NOTA: A pressão de alimentação de ar deve estar calibrada entre 3 e 10
bar (40 a 140 psi), sendo 3-10 bar (40-140 psi) a pressão recomendada
é de 80 psi . Mesmo assim é recomendado instalar o filtro regulador de
ar, para poder regular e fechar a alimentação de ar no final de cada dia
de trabalho (no caso de rupturas ou vazamentos na saída do óleo, se a
alimentação de ar não estiver fechada, a bomba se coloca em
funcionamento automaticamente, podendo esvaziar completamente o
deposito de óleo).
Pos. Descrição Cód.
1 Niple 945516
2
Mangote para ar
comprimido
246010
3 Engate Rapido hidráulico 253114
4 Conector para engate rápido 259014
5 Propulsora 353110
6
Mangueira para
abastecimento
362101
7 Suporte de parede 360102
8 Niple 945552
9 Mangote para sucção 362400
10 Registro para liberar a sucção 950306
11 Niple 945555
12 Niple 945565
Opcional
A
Registro para fechamento da
linha de ar
950319
B Niple Ø 1/4" x Ø 1/4" 239000
C Filtro Regulador de Ar 240500
D Válvula de abastecimento 950300
E Adaptador para tambor 609007
PROPULSORA MONTADA EM TAMBOR
Fig. 3a
PROPULSORA MONTADA EM TAMBOR
Fig. 3b
Para titulo informativo, como mostra a figura 3A. e figura 3B, ilustramos
duas instalações típicas com todos os elementos recomendados para o
correto funcionamento da propulsora.
TIPOS DE CONEXÕES PARA INSTALAÇÃO DA PROPULSORA

Related product manuals