EasyManua.ls Logo

Samsung AC024BNZDCH - Connecting the External Floating Switch

Samsung AC024BNZDCH
60 pages
Print Icon
To Next Page IconTo Next Page
To Next Page IconTo Next Page
To Previous Page IconTo Previous Page
To Previous Page IconTo Previous Page
Loading...
37
English
Installation
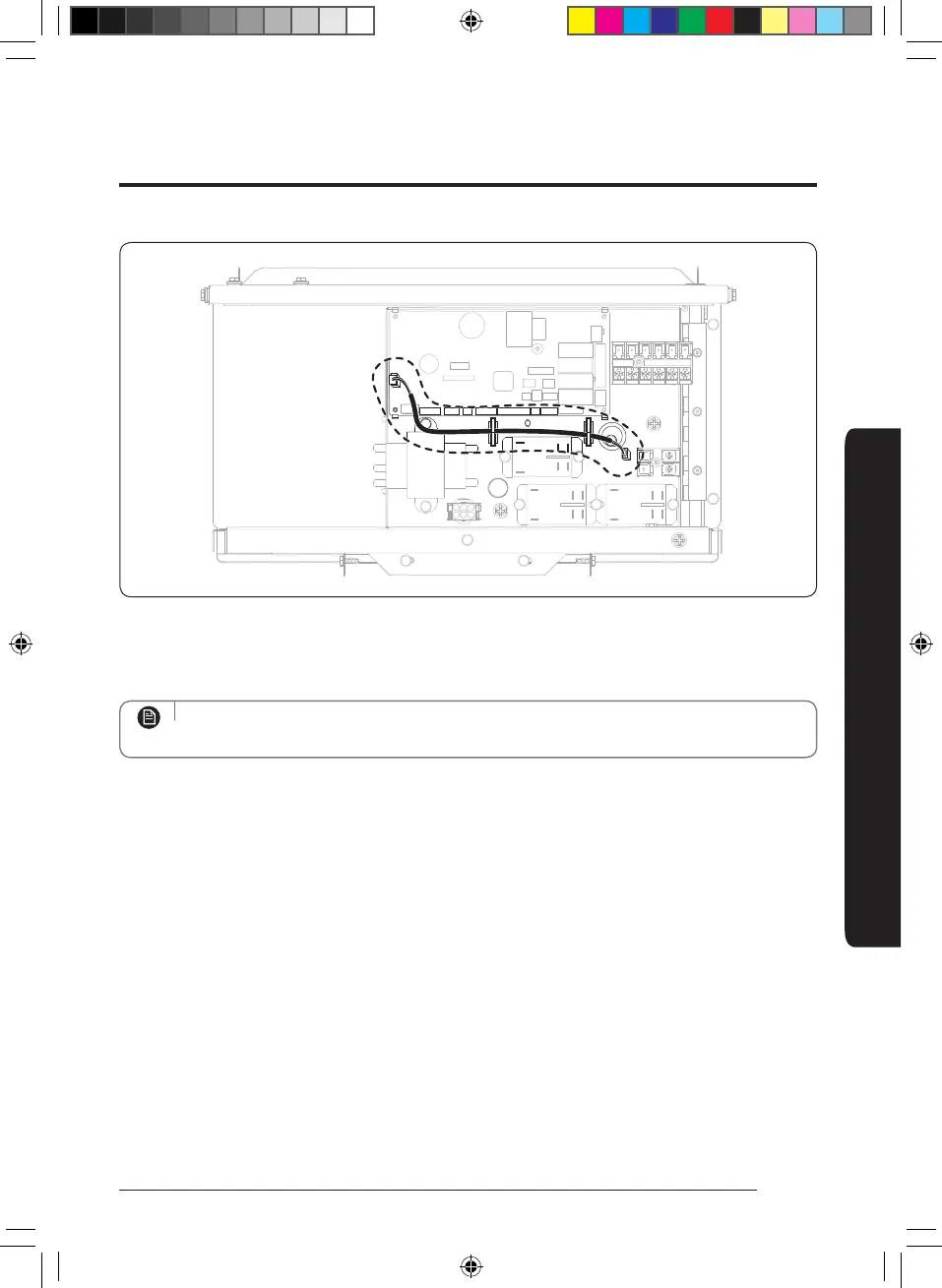
1. 
2. 

3. 
NOTE
 The External Floating switch is not sold separately by Samsung.
Connecting External Float switch
DB68-11271A-02_IM_CAC Universal AHU Indoor_AA_EN_.indd 37 2022-09-15 오전 9:53:24

Other manuals for Samsung AC024BNZDCH

Related product manuals