EasyManua.ls Logo

Samsung AC024BNZDCH - Page 53

Samsung AC024BNZDCH
60 pages
Print Icon
To Next Page IconTo Next Page
To Next Page IconTo Next Page
To Previous Page IconTo Previous Page
To Previous Page IconTo Previous Page
Loading...
53
English
Installation
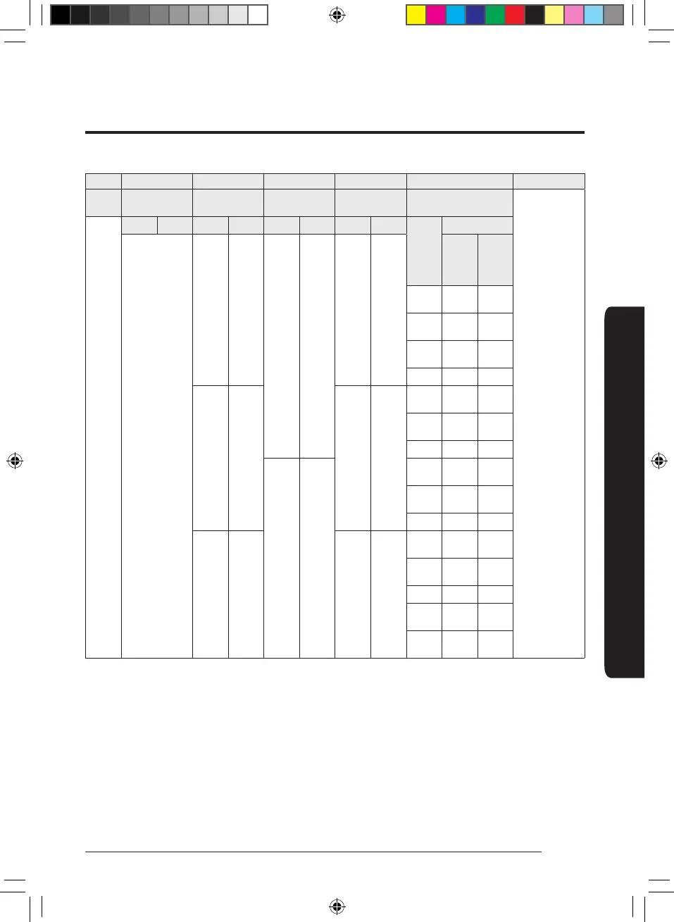
Option SEG 7 SEG 8 SEG 9
SEG 10 SEG 11 SEG 12
Function
Page Use of drain pump Use of Hot Coil
Use of Hot auxiliary
heater
Controller variables for auxiliary
heater
Reserved
Indication
and details
Indication
Details
Indication
Details Indication Details Indication Details
Indication
Details
1
0 Disuse
0 Disuse
0 Disuse
Set
temperature
for auxiliary
heat on
Time
delay for
auxiliary
heat on
0
No temperature
offset
No delay
1
No temperature
offset
10
minutes
2
No temperature
offset
20
minutes
3
2.7°F(1.5°C)
No delay
1 Use
1 Use
4
2.7°F(1.5°C)
10
minutes
5
2.7°F(1.5°C)
20
minutes
6
5.4°F(3°C)
No delay
1 Use
7
5.4°F(3°C)
10
minutes
8
5.4°F(3°C)
20
minutes
9
8.1°F(4.5°C)
No delay
2
Use
with 3
minute
delay
2
Use
(Heater
time
delay)
A
8.1°F(4.5°C)
10
minutes
B
8.1°F(4.5°C)
20
minutes
C
10.8°F(6°C)
No delay
D
10.8°F(6°C)
10
minutes
E
10.8°F(6°C)
20
minutes
DB68-11271A-02_IM_CAC Universal AHU Indoor_AA_EN_.indd 53 2022-09-15 오전 9:53:33

Other manuals for Samsung AC024BNZDCH

Related product manuals