EasyManua.ls Logo

Samsung AD26B1C13 - Outdoor Unit Wiring Diagram

Samsung AD26B1C13
37 pages
Print Icon
To Next Page IconTo Next Page
To Next Page IconTo Next Page
To Previous Page IconTo Previous Page
To Previous Page IconTo Previous Page
Loading...
32
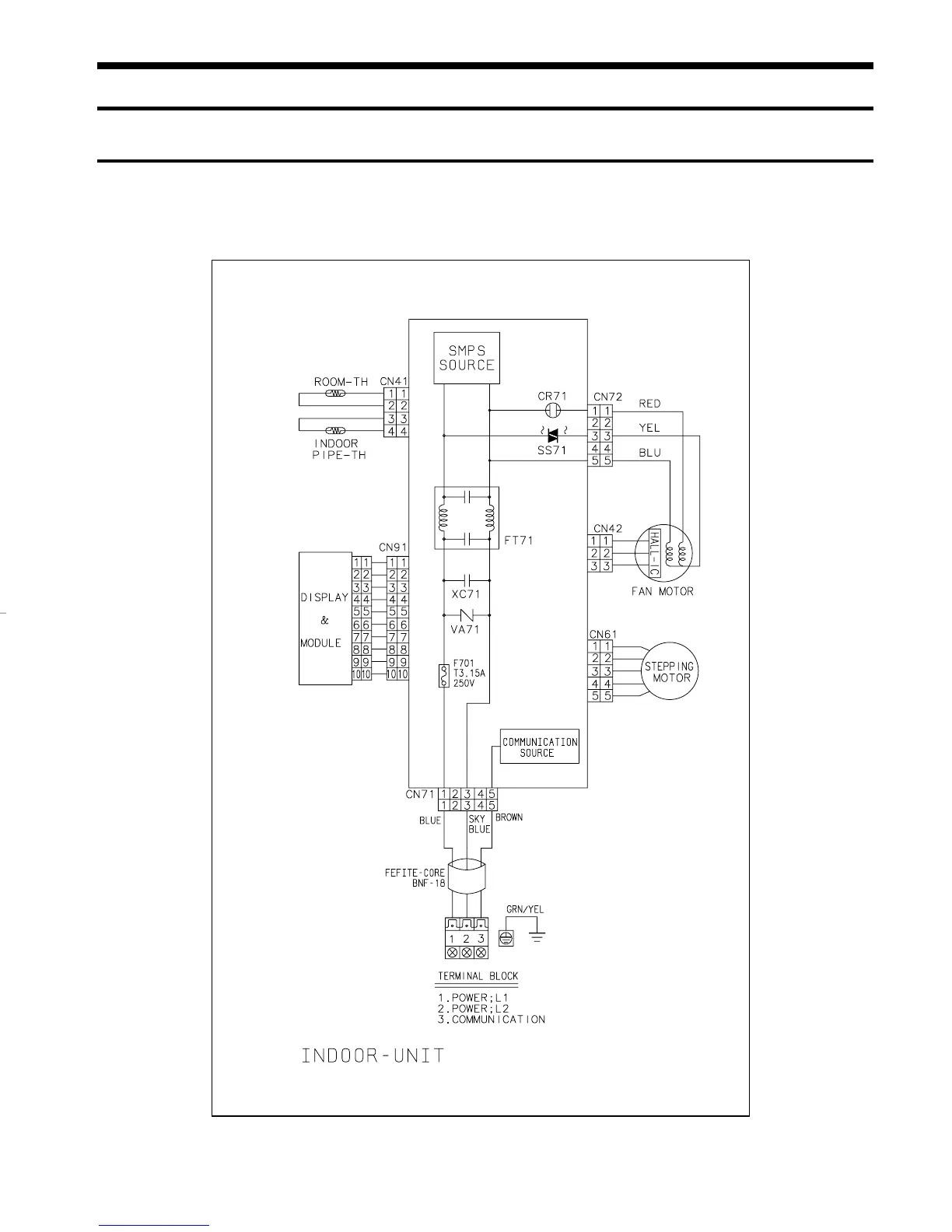
6. Wiring Diagrams
6-1 Indoor Unit
DB98-05645A(1)-2 5/30/02 7:06 PM Page 32

Related product manuals